Продажа арендного бизнеса у метро Павшино, 44 500 м2
Описание
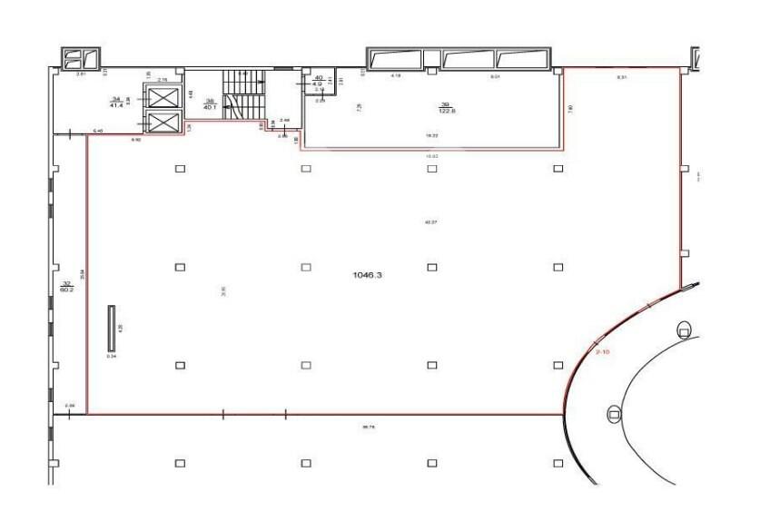
Характеристики объекта
Описание
Продается уникальный Торгово-развлекательный центр «ИЮНЬ»!
Представляем вашему вниманию Торгово-развлекательный центр «ИЮНЬ» общей площадью 44 996 кв. м (GBA) – идеальное место для бизнеса и развлечений!
Основные характеристики:
• Два современных корпуса:
– ТРЦ-1: 20 901,6 кв. м, 6 этажей, введен в эксплуатацию в 2012 году.
– ТРЦ-2: 24 094,4 кв. м, 5 этажей (включая подземный), введен в эксплуатацию в 2015 году.
• Удобная навигация: Корпуса соединены надземной галереей, что обеспечивает комфортный доступ и привлекательную атмосферу для посетителей.
• Земельные участки: Общая площадь земельных участков составляет 9 490 кв. м, находящиеся в долгосрочной аренде до 2050 года.
Почему стоит инвестировать в ТРЦ «ИЮНЬ»:
• Стратегически выгодное расположение: Центр находится в зоне активного притяжения покупателей, что гарантирует высокий трафик и прибыльность бизнеса.
• Современные стандарты: Здания соответствуют современным требованиям и стандартам безопасности, что делает их привлекательными для арендаторов.
АрендаторыИнформация об арендаторах
Расположение
Похожие объекты




































