Продажа склада в г. Пушкино, 833,3 м2
Цена:
83 300 000 ₽
Цена м2:
99 963 ₽
Московская обл, г Пушкино, деревня Цернское, тер АгроПром, д 34
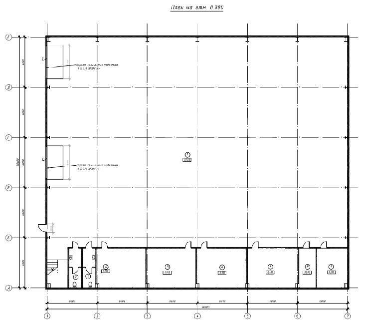
Новое складское помещение класса "В" на первой линии Фряновского шоссе. Удобный подъезд для большегрузного автотранспорта, 29 км от МКАД. Развитая инфраструктура. 1 этаж. Ворота - 2 шт. на уровне "0". Открытая планировка + офисный блок. Полы - антипыль. Полностью оборудован всем необходимым для эксплуатации. Водоснабжение - скважина, канализация - септик. 2 мокрые точки. Воздушное отопление от газовых котлов, газгольдер. Приточная вентиляция. Земельный участок в собственности. Категория - земли промышленности, ВРИ - склады. В шаговой доступности остановка общественного транспорта.
Технические характеристики:
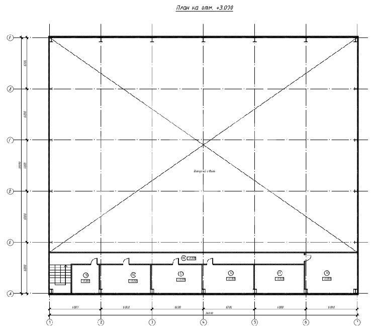
Общая площадь - 1200 кв.м., в т.ч. офисный блок на мезонине - 100 кв.м.
Высота потолка - 8 метров до ферм, 10 в коньке.
Сетка колонн - 9*3 метра.
Электрическая мощность - 50 кВт., с возможностью увеличения.
Земельный участок - 22 сотки.
Ввод в эксплуатацию - 1 кв. 2025 г.

