Продажа арендного бизнеса в г. Чехов, 32 835 м2
- Доходность21,14 %
- Окупаемость4,7 лет
- МАП50 739 000 ₽
- ГАП608 867 968 ₽
Описание
Характеристики объекта
Описание
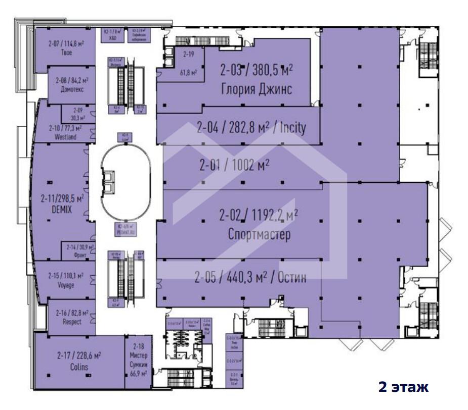
ТРЦ "Карнавал" с арендаторами г. Чехов. Первая линия. Пересечении центральных ул. Московской и Ольховской. Плотная жилая застройка. Интенсивный автомобильный и пешеходной трафик. Локация центр притяжения района. 5 этажей + цоколь (паркинг). 2 входные группы. Открытая планировка. Якорные арендаторы: Перекресток, М.Видео, Спортмастер, кинотеатр Матрица. Торговая галерея: 86 % федеральных арендаторов. Кафе, рестораны и детский развлекательный центр. Витринное остекление. Возможность размещения вывески. На цокольном этаже предусмотрено 187 машиномест, на наземном городском паркинге - 20 машиномест. Напротив ТРЦ остановка общественного транспорта. Общая площадь: 32 835 кв.м. ЗУ: 9 047 кв.м. Арендаторы: Перекресток, М.Видео, Спортмастер, кинотеатр Матрица и др. Общий МАП: 50 739 000 руб. Общий ГАП: 608 868 000 руб.
АрендаторыИнформация об арендаторах
Расположение
Похожие объекты




























