Продажа склада на улице Индустриальная, 1 440 м2
Цена:
87 500 000 ₽
Цена м²:
60 763 ₽
Воронежская обл, Новоусманский р-н, село Бабяково, ул Индустриальная, д 3
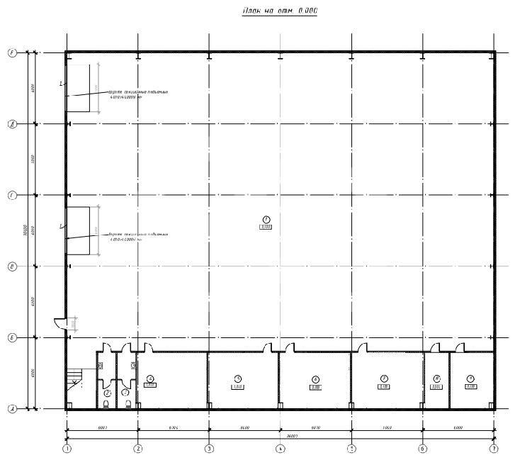
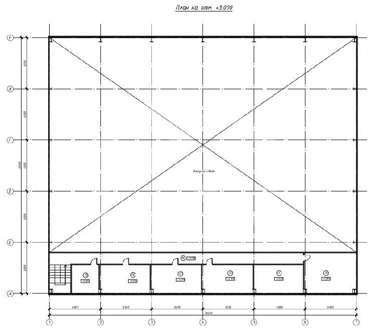
Новое складское помещение класса "В" на первой линии Фряновского шоссе. Удобный подъезд для большегрузного автотранспорта, 29 км от МКАД. Развитая инфраструктура. 1 этаж. Ворота - 2 шт. на уровне "0". Открытая планировка + офисный блок. Полы - антипыль. Полностью оборудован всем необходимым для эксплуатации. Водоснабжение - скважина, канализация - септик. 2 мокрые точки. Воздушное отопление от газовых котлов, газгольдер. Приточная вентиляция. Земельный участок в собственности. Категория - земли промышленности, ВРИ - склады. В шаговой доступности остановка общественного транспорта.
Технические характеристики:
Общая площадь - 1257,1 кв.м., в т.ч. офисный блок на мезонине - 100 кв.м.
Высота потолка - 8 метров до ферм, 10 в коньке.
Сетка колонн - 9*3 метра.
Электрическая мощность - 50 кВт., с возможностью увеличения.
Земельный участок - 22 сотки.
Ввод в эксплуатацию - 1 кв. 2025 г.
