Продажа готового бизнеса в ЖК Клубный город на реке Primavera, 56,1 м2
Цена:
60 000 000 ₽
Цена м2:
1 069 518 ₽
г Москва, Покровская наб, д 16
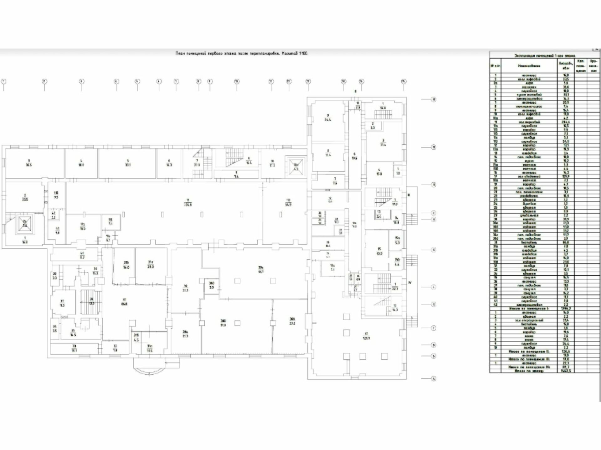
Бизнес-центр "Савеловград" на Складочной улице. 10 минут пешком от станции метро Савёловская. Сложившееся деловое окружение. 6-этажное офисное здание с арендными площадями офисного и складского назначения. Смешанная планировка. Приточно-вытяжная вентиляция. Система центрального кондиционирования. На прилегающей территории расположен наземный паркинг. З/у 3 749 кв. м. Аренда до 11.01.2071 г. Высота потолков: 3,2 м. Все площади сданы в аренду. Общий МАП: 8 500 000 руб. Окупаемость: 7,4 лет.

