Продажа склада на улице Индустриальная, 1 440 м2
Цена:
87 500 000 ₽
Цена м²:
60 763 ₽
Воронежская обл, Новоусманский р-н, село Бабяково, ул Индустриальная, д 3
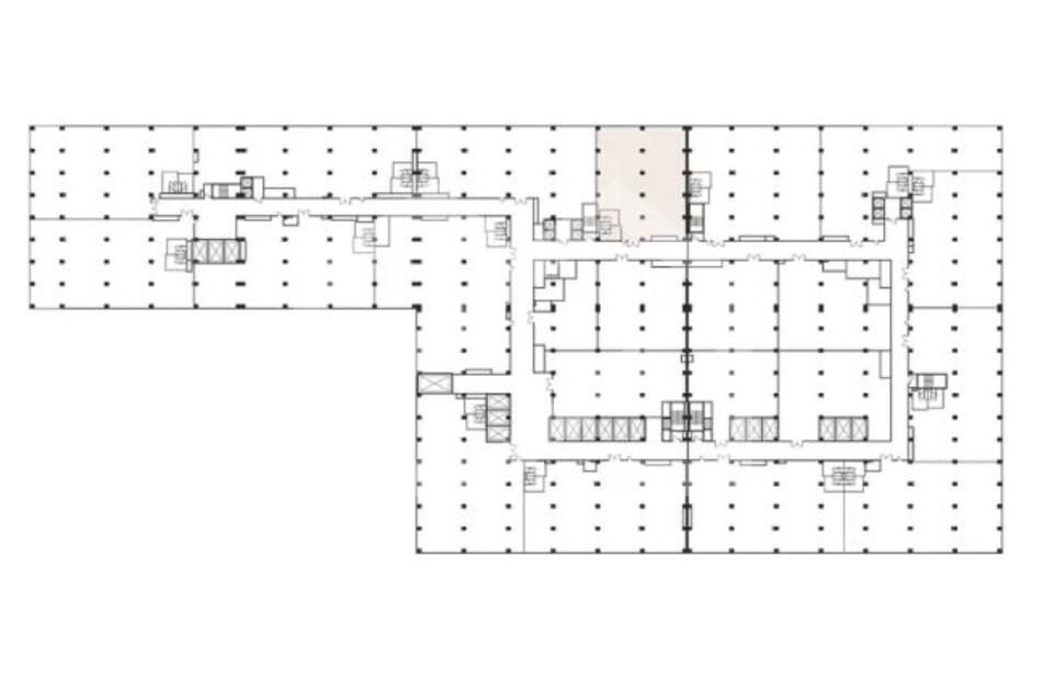
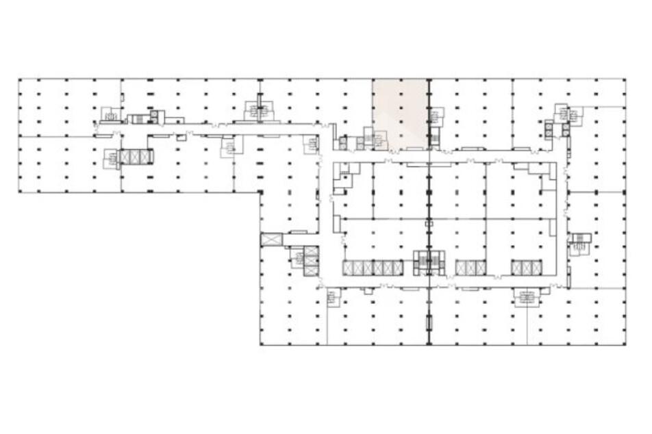
Предлагается складское помещение общей площадью 50 000 кв.м.в БЦ "Левел Ворк Свободы" в СЗАО. 1-8 этаж.
Преимущества:
Удобный выезд на Волоколамское шоссе.
5 км от МКАД. 5 минут езды до станций метро "Сходненская", "Тушинская".
Развитое торговое и рекреационное окружение.
Готовность - 2028 год.
На территории: столовая, переговорные, офисы, шоурумы, медицинский центр.
8-ой этаж.
Типовой ремонт.
Многоуровневый крытый паркинг.
В пешей доступности остановки общественного транспорта, пешеходный переход.
Круглосуточный доступ и техподдержка.
Технические характеристики:
Площадь: 50 000 кв.м.
Высота потолков: 4,5 - 8 м.
Нагрузка на пол: 1,5 - 6 т/кв.м.
Электрическая мощность: 90 - 120 Вт/кв.м.
Паркинг (м/м): 350 м/м.
Производственный комплекс оснащён 36 погрузочно-разгрузочными доками, промышленными лифтами с грузоподъёмностью до 8 тонн.
