Продажа склада в г. Ногинск, 1 073 м2
Цена:
50 000 000 ₽
Цена м2:
46 598 ₽
Московская обл, г Ногинск, деревня Аксено-Бутырки, ул Молодежная, д 12
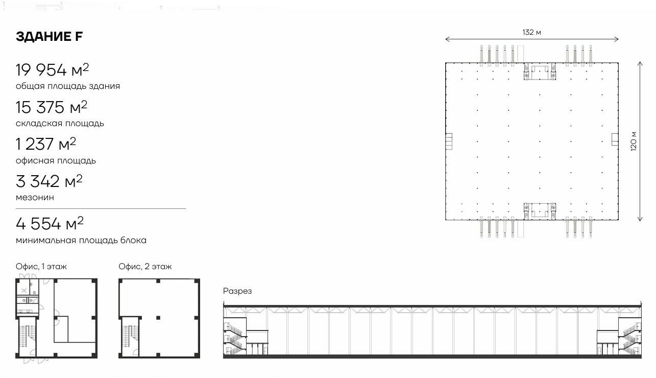
FLEX BOX: Здание общей площадью 20432 кв. м. с характеристиками big box и гибким делением блоков, характерным для light industrial, в производственно-складском комплексе класса "А" промышленном парке "Кувекино".
Преимущества:
Комплекс общей площадью 340 тыс. м2 находится в Новой Москве и расположен на проспекте Славского - новой 4х полосной дороге, соединяющей Варшавское и Калужское шоссе.
20 минут от м. Троицк или Ольховая.
Развитая транспортная инфраструктура.
Сложившееся складское и промышленное окружение.
1, 2, 3 этаж.
Открытая планировка + офисно-торговый блок: 3 уровня, с готовой отделкой.
По запросу возможна установка въездной рампы или пандуса.
Спринклерная система пожаротушения.
Закрытая территория.
В шаговой доступности остановка общественного транспорта Евсеево.
Технические характеристики в корпусе L:
Площадь блока: 20432 кв. м.
Промышленно-складская площадь: 16327 кв. м.
Офисная часть: 4105
Доковые ворота - 27 шт.
Шаг колонн: 12х24 м.
Высота потолка рабочая : 12.5 м.
Нагрузка на пол: 8т/м².
Электричество - 400КВт, 20вт/м2
Погрузочные зоны в каждом блоке на уровне 1.2 м и 0 м от земли.
Погрузочные зоны докового типа оборудованы докшелтерами и доклевеллерами.
Парковочных мест для легкового транспорта: 50.
Парковочных мест для грузового транпорта: 25.
Так как корректный адрес отсутствует на Яндекс.Картах, введен ближайший.

