Продажа производственного помещения у метро Коптево, 2 147,2 м2
Цена:
350 000 000 ₽
Цена м²:
163 002 ₽
г Москва, 2-й Лихачёвский пер, д 8
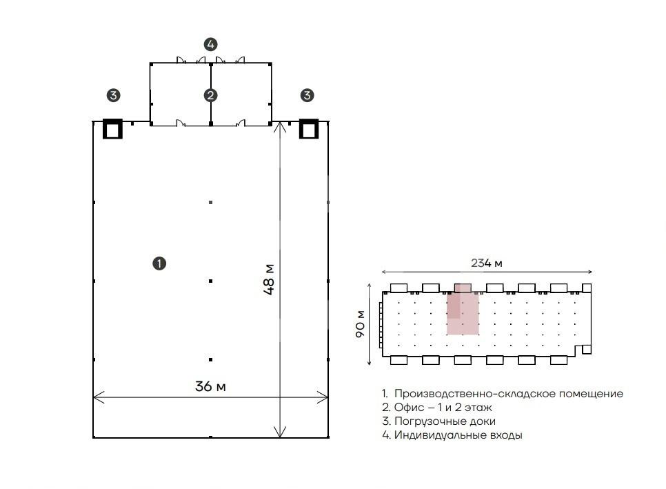
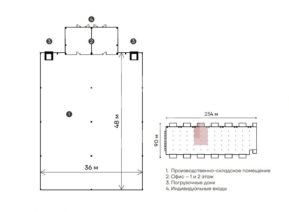
Предлагается помещение общей площадью 2 067 кв. м, в складском комплекcе категории "А" формата Лайт Индастриал во Внуково.
Возможное использование:
- производство: легкое, швейное, сборка, металлообработка;
- ритейл: магазин с шоурумом, офисом и складом;
- склад с возможностью организации офиса или шоурума;
- логистика.
Преимущества:
- находится в Новой Москве на Киевском шоссе, напротив аэропорта Внуково, в новом промышленном парке "Соколово";
- отличная транспортная доступность: 100 м от Киевского шоссе, 15км (10 мин) до МКАД по Киевскому шоссе или 25 минут на общественном транспорте до м. Саларьево или Румянцево;
- общая площадь комплекса 317 тыс. кв. м;
- 1 этаж + антресоль;
- офисные помещения с отделкой входят в стоимость и расположены на 2 уровнях, что позволяет разделить функции офиса и торгового зала;
- пол: бетонный с антипылевым покрытием;
- вентиляция: офисные помещения-вытяжка; складские помещения-естественная;
- плоская кровля с внутренним водостоком;
- возможность установления кран-балки;
- по запросу возможна установка въездной рампы или пандуса;
- парковка на территории комплекса для разных типов а/м;
- система видеонаблюдения;
- закрытая территория;
- прямо перед входом в парк - остановка автобуса "Соколово" на Киевском шоссе.
Технические характеристики в корпусе "А":
- площадь блока 2 067 кв. м, в т.ч.: промышленно-складская площадь- 1 379 кв. м и офисно-торговая площадь- 328 кв. м;
- мощность: 60 кВт, возможно любое увеличение;
- шаг колонн: 12х18 м;
- высота потолка: 8 м;
- нагрузка на пол: 5 т/кв. м;
- парковка: 6 мест для л/а, 4 груз. места;
- зона погрузки/разгрузки: в каждом блоке: погрузочные доки на уровне 1,2 м от земли или ворота на уровне 0 м.
Ввод в эксплуатацию: 4 квартал 2026 года.
