Продажа склада в г. Ногинск, 1 073 м2
Цена:
50 000 000 ₽
Цена м2:
46 598 ₽
Московская обл, г Ногинск, деревня Аксено-Бутырки, ул Молодежная, д 12
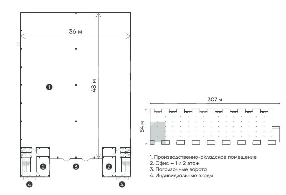
Складской комплекс категории Light Industrial в промышленном парке Сенькино общей площадью 340 тыс м2 в пос. Краснопахорское, г. Москва. Первая линия. Развитая транспортная инфраструктура: в 50м выезд на ЦКАД, между Калужским и Киевским шоссе, 30 минут до МКАД. Доступ к основным магистралям. Стабильный автомобильный трафик по ЦКАД. Зона погрузки/разгрузки: в каждом блоке — погрузочные доки на уровне 1,2 м от земли
или ворота на уровне 0 м. По запросу возможна установка въездной рампы или пандуса. Открытая планировка + офисные блоки. Офисные помещения с отделкой входят в стоимость и расположены на 2 уровнях, что позволяет разделить функции офиса и торгового зала. Пол: бетонный с антипылевым покрытием. Вентиляция: офисные помещения-вытяжка; складские помещения-естественная. Система видеонаблюдения. Плоская кровля с внутренним водостоком. Возможность установления кран-балки. Парковка на территории комплекса для разных типов а/м. Рядом остановки общественного транспорта.
Технические характеристики:
Здание - корпус С.
Площадь блока: 2024 кв. м.:
производственно-складская часть - 1672м2,
офисная часть - 352 м2.
Рабочая высота потолков: 8 метров.
Шаг колонн: 12х18.
Нагрузка на пол: 5 т/м2
2 доковых ворох на высоте 1,2 м.
Парковка : 4 легковых и 2 грузовых места.
Электрическая мощность: 50 кВт.
Объект построен, оформляются документы.
Доступ - февраль 2025 года.

