Продажа склада в г. Ногинск, 1 073 м2
Цена:
50 000 000 ₽
Цена м2:
46 598 ₽
Московская обл, г Ногинск, деревня Аксено-Бутырки, ул Молодежная, д 12
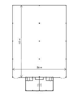
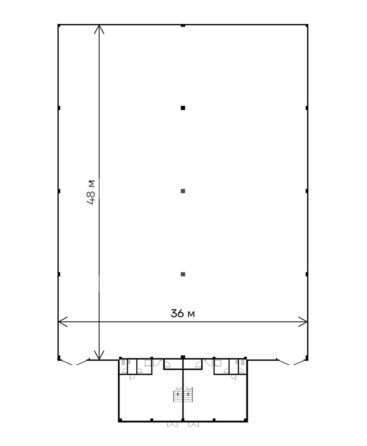
Помещение общей площадью 2067 кв. м., в складском комплексе Light industrial
Преимущества:
Расположение на проспекте Славского в 9 минутах (7 км) от г.Троицк и новой станции метро.
15 мин до ст. Ольховая.
Расположение между Варшавским и Калужским шоссе, вблизи деревень Кувекино и Евсеево дает отличную транспортную доступность во всех направлениях.
Развитая инфраструктура.
Формат блоков: 80% - универсальное пространство и хранение, 20% - офисно-торговый блок.
Погрузочные зоны в каждом блоке на уровне 1.2 м или 0 м от земли.
Погрузочные зоны докового типа оборудованы докшелтерами и доклевеллерами.
Офисно-торговый блок: двухуровневый, с готовой отделкой.
Спринклерная система пожаротушения, гидранты, пожарная сигнализация.
Закрытая охраняемая территория с пропускным режимом.
Дополнительная аренда легковых и грузовых парковочных мест.
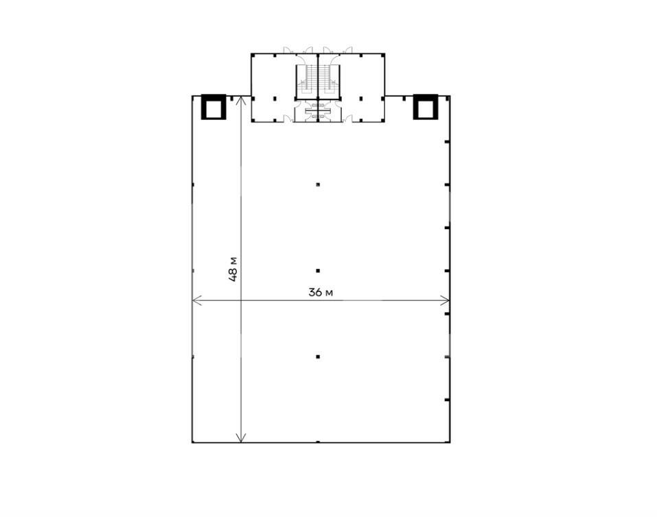
Технические характеристики в корпусе L:
Площадь блока: 2067 кв. м.
Офисно-торговая площадь - 328 кв. м.
Шаг колонн: 12х18 м.
Высота потолка: 5 м.
Нагрузка на пол: 5 т/м².
Электричество - 40 кВт, 20 вт/м2, можно увеличить
Парковка - 4 места для л/а, 2 грузовых места.
Так как корректный адрес отсутствует на Яндекс.Картах, введен ближайший.

