Продажа склада в г. Люберцы, 1 472 м2
Цена:
192 270 000 ₽
Цена м2:
130 618 ₽
Московская обл, г Люберцы, поселок Чкалово, ул Токаревская, д 15
Производственно-складское помещение формата Light Industrial в цифровом индустриальном парке "ЛЕНИНСКИЙ". 1 км от трассы М-4 и рядом с гор. Видное. 5 мин. на автобусе до пл. Расторгуево. 10 км от МКАД, в 30 км от ЦКАД. Цифровой промышленный парк общей площадью 8 5000 м2. Парк прошел сертификацию ассоциации по уровню готовности зданий к облачным подключениям и соответствию стандартам цифровой экономики. Парки Industrial City подключены к мощным центрам обработки данных, имеют высокий уровень надежности и безопасности. Готовая инженерная инфраструктура. Оборудованные парковочные места. Доступ к производственно-складским помещениям 24/7. Комплексная эксплуатация объектов. Охраняемая территория. Въезд на территорию бесплатный (цена входит в охрану). Земельный участок под помещением выделяется и передается в собственность.
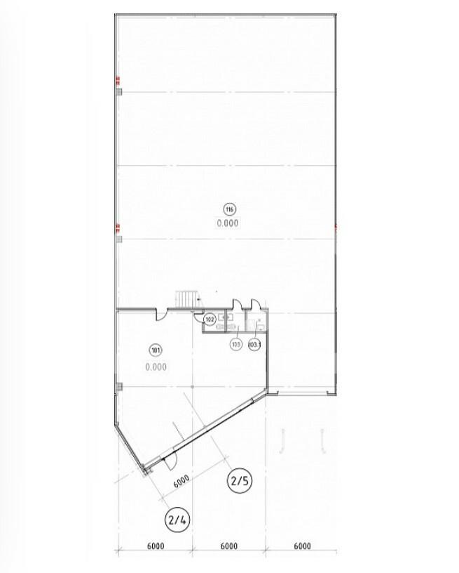
Технические характеристики:
Площадь блока: 1426.52 кв.м.
Площадь производственная: 928 кв. м.
Площадь мезонина: 254 кв.м
Площадь офиса: 242 кв.м.
Шаг колонн: 18х24 м.
Высота потолка: 8 м - рабочая, до низа металлоконструкций, 10 м - до потолка.
Ворота - доковые 1 шт.
Нагрузка на пол: 5 т/м².
Мощность - 50 кВт, возможно любое увеличение.
Количество грузовых парковочных мест - 2, легковых - 6.
Сдача - 4 кв. 2026 г.
Возможно приобретение в ипотеку.

