Продажа склада в г. Ногинск, 1 073 м2
Цена:
50 000 000 ₽
Цена м2:
46 598 ₽
Московская обл, г Ногинск, деревня Аксено-Бутырки, ул Молодежная, д 12
Помещение общей площадью 1635 кв. м. в складком комплексе категории "В" Light Industrial в промышленном парке "Кувекино".
Преимущества:
Комплекс общей площадью 340 тыс.м2 находится в Новой Москве и расположен на проспекте Славского - новой 4х полосной дороге соединяющей Варшавское и Калужское шоссе.
20 минут от м. Троицк или м. Ольховая.
Развитая транспортная инфраструктура.
Открытая планировка + офисные блоки.
Офисные помещения с отделкой входят в стоимость и расположены на 2 уровнях, что позволяет разделить функции офиса и торгового зала.
Закрытая территория.
В шаговой доступности остановка общественного транспорта Евсеево.
Технические характеристики в корпусе L:
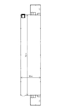
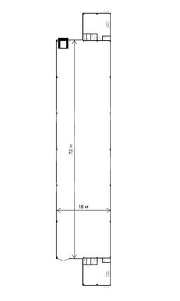
Площадь блока: 1635 кв. м.
1307 м2 - производственно-складская площадь.
328 м2 - офисно-торговая площадь.
Доковые ворота - 2 шт. на уровне 1.2 м.
Шаг колонн: 12х18 м.
Высота потолка рабочая: 8 м.
Нагрузка на пол: 5 т/м².
Зона погрузки/разгрузки: в каждом блоке — погрузочные доки на уровне 1,2 м от земли или ворота на уровне 0 м.
По запросу возможна установка въездной рампы или пандуса.
Пол: бетонный с антипылевым покрытием.
Вентиляция: офисные помещения - вытяжка; складские помещения - естественная.
Система видеонаблюдения.
Плоская кровля с внутренним водостоком.
Возможность установления кран-балки.
Количество машиномест для легкового транспорта: 4.
Количество машиномест для грузового транспорта: 2.
Так как корректный адрес отсутствует на Яндекс.Картах, введен ближайший.

