ID: 973297
Ссылка скопирована!
Аренда помещения свободного назначения у метро Волгоградский проспект, 574,5 м2
ID: 973297
г Москва, ул Сосинская, д 43 стр 2
Волгоградский проспект
5 мин.
Арендная плата :1 670 000 ₽/ в мес
Ссылка скопирована!
Арендная ставка:2 906 ₽/м² в мес
Площадь: 574,5 м²
г Москва, ул Сосинская, д 43 стр 2
Волгоградский проспект
5 мин.
Описание
Характеристики объекта
Описание
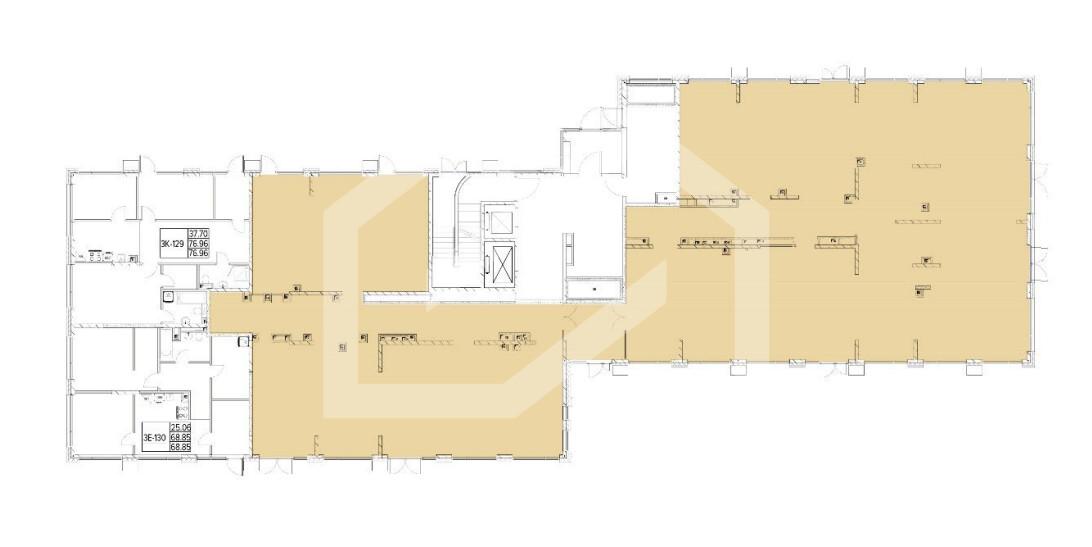
Помещение свободного назначения формата торговое помещение в жилом комплексе бизнес-класса Champine. Корпус 3. ЖК состоит из трех корпусов переменной этажности (от 6 до 13 этажей), рассчитан на 250 квартир. Комплекс находится внутри ТТК. 8 минут пешком от станции метро Волгоградский проспект. Активный район с жилой и офисной застройкой в ближайшем окружении (4 000 квартир в радиусе 500 м.). Интенсивный пеший и автомобильный трафик. 1 этаж 13-этажного жилого дома. 9 отдельных входных групп. Панорамное остекление. Вытяжка для общепита. Уличная парковка. Электрическая мощность: 75 кВт. Высота потолков: 5,7 м.
Расположение
г Москва, ул Сосинская, д 43 стр 2
Волгоградский проспект
5 мин.
Похожие объекты


















