Аренда помещения свободного назначения у метро Дубровка, 451,9 м2
Описание
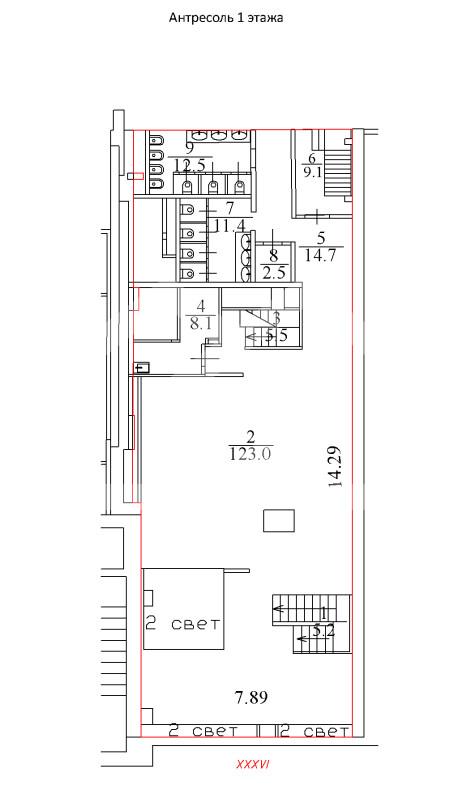
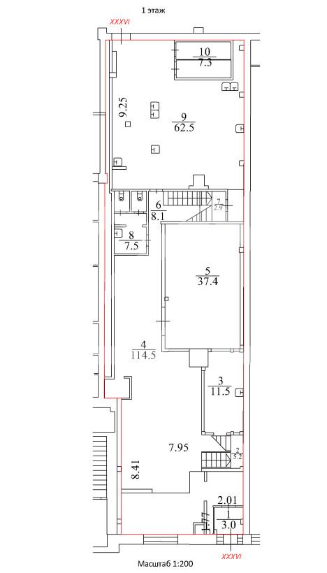
Характеристики объекта
Описание
Помещение свободного назначения в в бизнес-центре класса B+ "Омега-2" на первой линии ул. Ленинская Слобода. 3 минуты пешком от станции метро "Автозаводская". 1.4 км до ТТК, 3.7 км до Варшавского шоссе и Садового кольца, 4 км до Загородного шоссе. Плотный жилой массив. Сложившееся торговое окружение. Интенсивный автомобильный и пешеходный трафик. 1 этаж (260 кв. м) + антресоль (192 кв. м) 4-этажного жилого дома. Отдельный вход с фасада. Открытая планировка. Помещение с отделкой. Ранее располагался супермаркет "Дикси". Вытяжка под общепит. 2 мокрые точки. Все центральные коммуникации. Подойдет под супермаркет, ресторан, кафе, ритейл, шоурум или клиентский офис. Электрическая мощность: 160 кВт. Высота потолков: 3.2 м. Витринное остекление. Возможность размещения вывески. Зона погрузки/разгрузки. 856 парковочных мест рядом. Напротив остановка общественного транспорта и пешеходный переход.
Расположение
Похожие объекты






















