Продажа готового бизнеса в ЖК Клубный город на реке Primavera, 56,1 м2
Цена:
60 000 000 ₽
Цена м2:
1 069 518 ₽
г Москва, Покровская наб, д 16
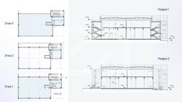
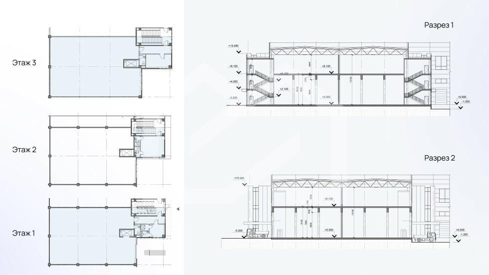
Предлагается складской комплекс формата LIGHT INDUSTRIAL общей площадью 3240 кв. м в индустриальном парке "Южный".
Преимущества:
Объект расположен между трассами М-2 и М-4, вблизи деревни Бяконтово.
Удобный заезд с Варшавского и Симферопольского шоссе (открытие заезда в 2026 г.).
Между главными подмосковными кольцевыми дорогами МКАД и ЦКАД, 25 км от аэропорта Домодедово и 40 км от Внуково.
Один из самых крупных транспортных хабов региона.
Готовность объекта и передача покупателю: 4 квартал 2025 года.
Формат блоков: 80% - универсальное складское пространство в 2 этажа, 20% - офисно-торговый блок: трехуровневый с готовой отделкой.
Погрузочные зоны в каждом блоке на уровне 1.2 м или 0 м от земли.
Возможность объединения блоков.
Каждый блок оборудован грузовым подъемником на 2 т.
Система пожаротушения.
Контроль въезда и охрана.
Отопление от собственной газовой котельной (444 м3/час).
Закрытая территория.
Парковка перед зданием.
Технические характеристики:
Площадь блока: 3240 м2 (6 блоков по 540 кв.м), из них:
2580м2 - склад, 660м2 - АБК.
Шаг колонн: 12х18.
Высота потолка: 1 этаж - 8 м, 2 этаж - 5 м.
Нагрузка на пол: 1 этаж - 5 т/м². 2 этаж - 2 т/м².

