Продажа готового бизнеса в ЖК Клубный город на реке Primavera, 56,1 м2
Цена:
60 000 000 ₽
Цена м2:
1 069 518 ₽
г Москва, Покровская наб, д 16
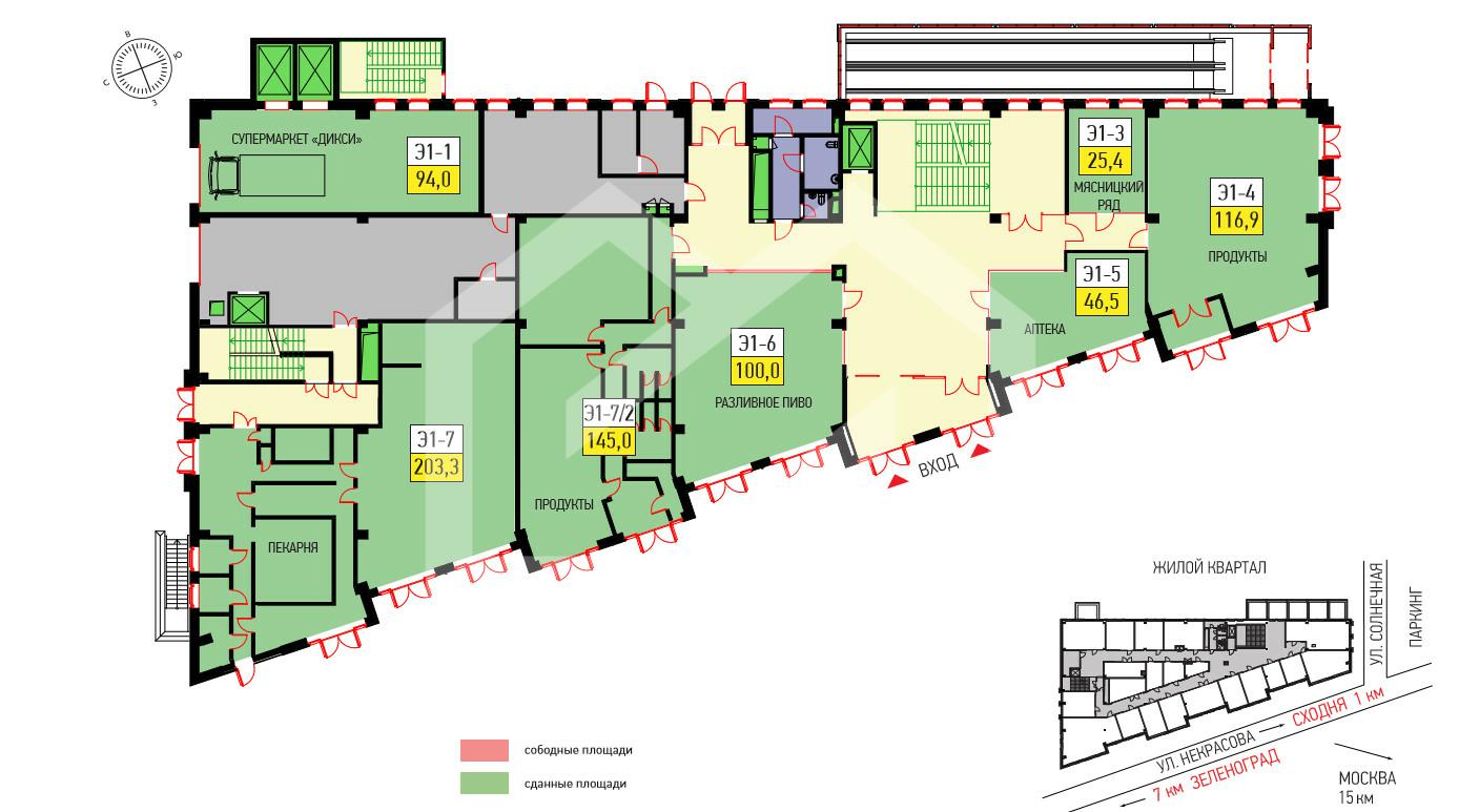
Торговый центр "Wellton" с якорным арендатором на территории одноименного жилого комплекса, Новая Сходня. 10 минут пешком от МЦД-3 Сходня. 15 км от МКАД. Плотный жилой массив. Интенсивный автомобильный и пешеходный трафик. 1 этаж. Отдельный вход с улицы. Дизайнерский ремонт. Удобная наземная парковка. Якорный арендатор: сеть супермаркетов "Дикси". МАП: 2 726 320 руб. Окупаемость: 9,2 лет.

