Аренда арендного бизнеса у метро Владыкино, 216,6 м2
Аренда в месяц:
70 000 000 ₽
Цена м²/год:
3 878 112 ₽
г Москва, Берёзовая аллея, д 17 к 2
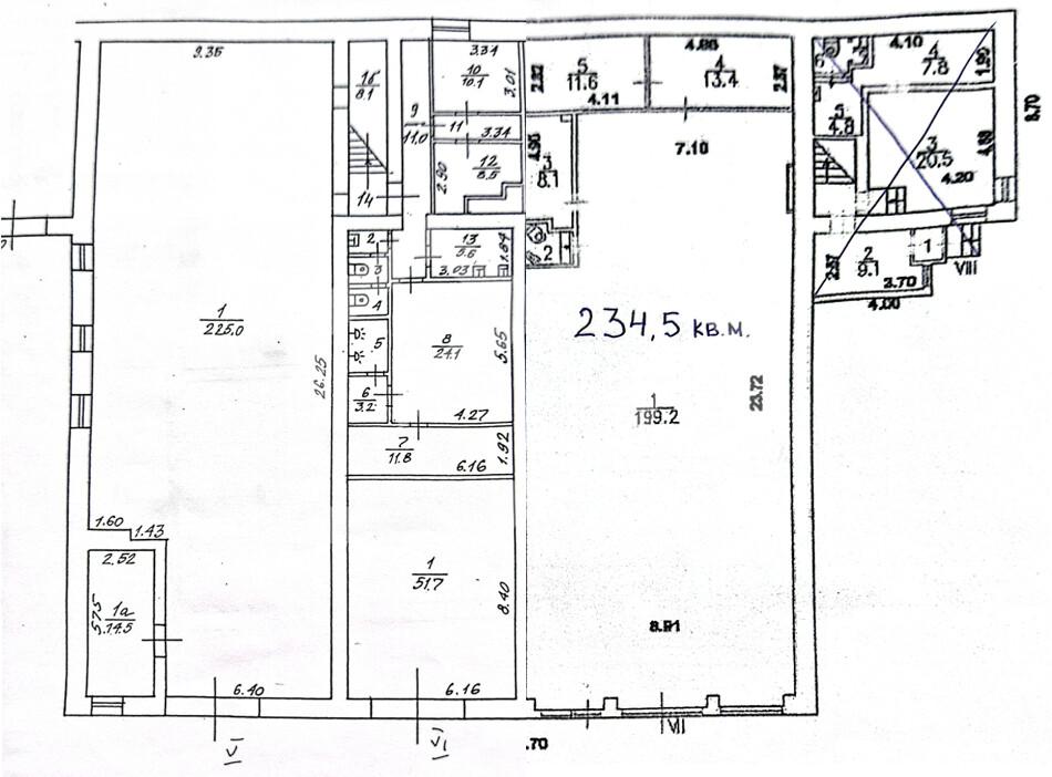
Торговое помещение с сетевым арендатором в отдельно стоящем административном здании рядом с метро «Динамо». Центр жилого массива. Здание 1905 года постройки. 1 этаж. Витринные окна. Все коммуникации центральные. Все помещения заняты на 100% структурами собственника и сданы в аренду. Парковка перед фасадом. Зона разгрузки/погрузки. Электрическая мощность: 80 кВт. Высота потолков: до балки - около 5 м, до перекрытия около 6 м
Арендатор: Яндекс Лавка
МАП: 900 000р
