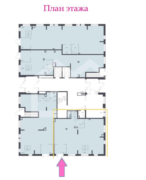
Продажа готового бизнеса на улице Молодогвардейская, 486 м2
Цена:
91 900 000 ₽
Цена м2:
189 094 ₽
г Москва, ул Молодогвардейская, д 21 к 1
Помещение свободного назначения формата Street Retail с арендатором в ЖК "Богдановский Лес", Корпус 7.4. ЖК состоит из 6-ти 12-этажных корпусов, рассчитанных на 1 618 квартир. 30 минут на автомобиле до станции метро "Домодедовская". 5 км до Володарского шоссе. Плотный жилой массив. Стабильный автомобильный и пешеходный трафик. 1 этаж 12-этажного жилого дома. Отдельный вход с улицы. Открытая планировка. Электрическая мощность: 20 кВт. Высота потолков: 2.95 м. Витринное остекление. Возможность размещения вывески. Наземная парковка.
Арендатор:
ВкусВилл.
ДДА на 5 лет.
МАП: 1 год 240 000,00

