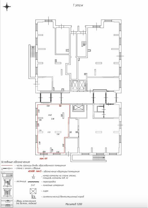
Продажа готового бизнеса в ЖК Клубный город на реке Primavera, 56,1 м2
Цена:
60 000 000 ₽
Цена м2:
1 069 518 ₽
г Москва, Покровская наб, д 16
Предлагается на продажу помещение свободного назначения с арендатором.
Помещение располагается на углу жилого дома, в плотном жилом массиве.
1 этаж, мощность - 18 кВт, высота потолков 4 метра.
Арендатор: Студия Английского языка, ДДА на 5 лет, 6 мес - 200 000 рублей, с 7-го месяца ставка 240 000 рублей, с 13 месяца аренда индексация 5%.

