Продажа помещения свободного назначения на улице Ленинский проспект, 166,2 м2
Цена:
53 184 000 ₽
Цена м2:
320 000 ₽
г Москва, Ленинский пр-кт, д 67 к 1
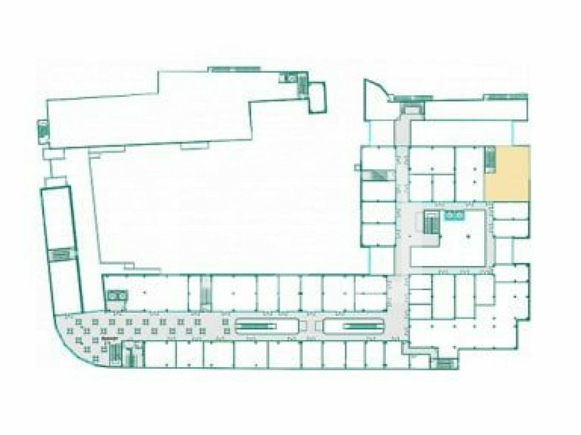
Помещение свободного назначения в ТЦ "Metromall" в районе Западное Дегунино. Густонаселённый жилой массив. Интенсивный автомобильный и пешеходный трафик. Развитая инфраструктура: выезд на Дмитровское шоссе рядом с ТЦ. Пешая доступность до станций метро Верхние Лихоборы (1 мин.) Сложившееся торговое и деловое окружение. 1 этаж 2-этажного здания. Отдельный вход из торговой галереи. Открытая планировка. Витринное остекление. Возможность размещения вывески, проведения мокрой точки. Зона разгрузки/погрузки.
Технические характеристики:
Площадь блока: 151.6 кв.м.
Высота потолков: от 4.2 м.

