Продажа готового бизнеса на улице Академика Янгеля, 3 156,7 м2
Цена:
720 000 000 ₽
Цена м2:
228 086 ₽
г Москва, ул Академика Янгеля, д 6 к 1
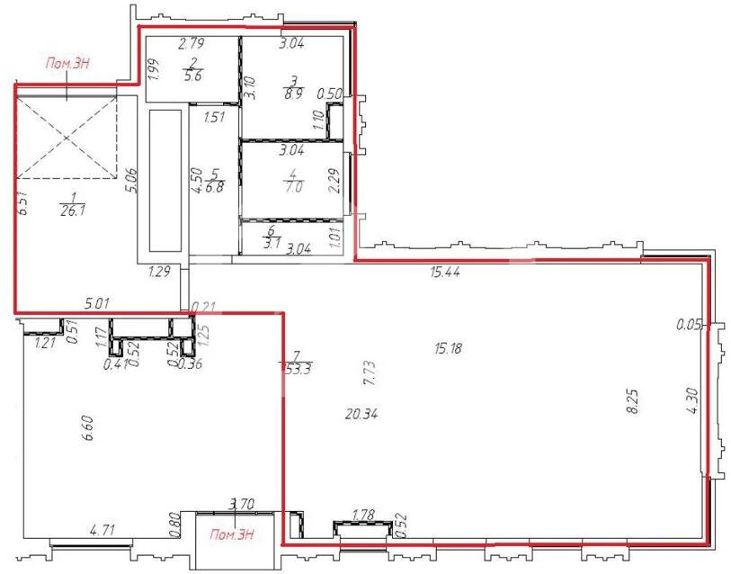
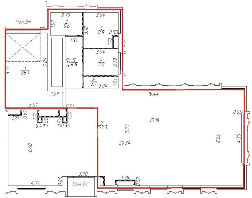
Помещение свободного назначения с арендатором в апарт-комплексе "Измайловский парк" на первой линии Окружного проезда. В комплексе 805 апартаментов, апартаменты с чистовой отделкой. 5 минут пешком от станции метро "Измайлово". 1 км до Измайловского шоссе, 1.4 км до Щёлковского шоссе, 4.4 км до шоссе Энтузиастов. Плотный жилой массив. Интенсивный автомобильный и пешеходный трафик. 1 этаж 24-этажного апарт-комплекса. Отдельный вход с улицы. Открытая планировка. Высота потолков: 4.5 м. Электрическая мощность: 30 кВт. Витринное остекление. Возможность размещения вывески. Наземная парковка. Рядом остановка общественного транспорта.
Арендатор: Магнит Заряд. МАП - 471 200 р.
