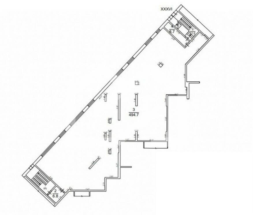
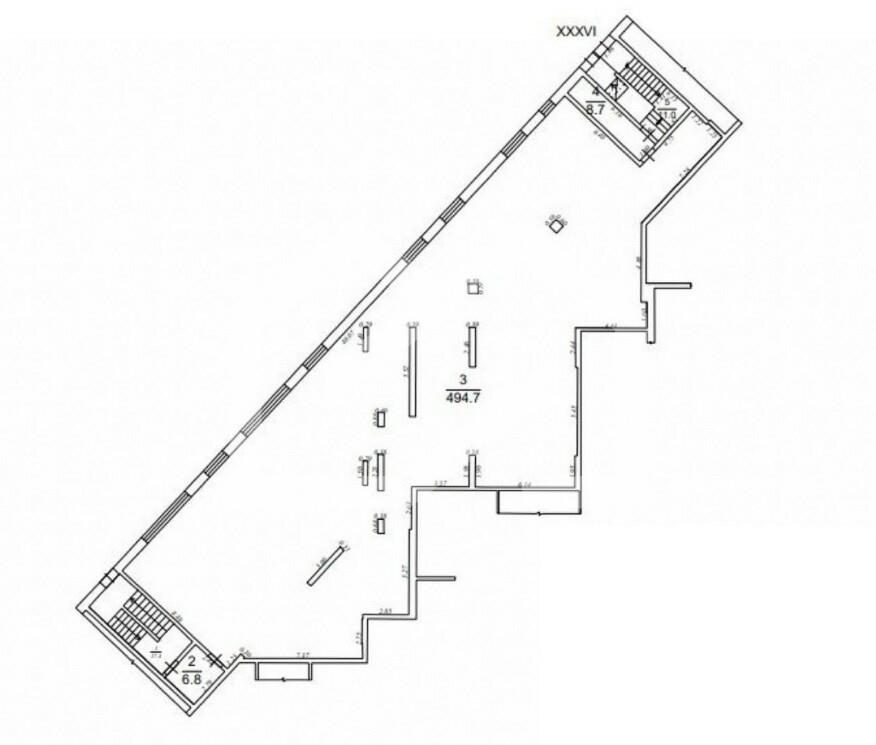
Продажа готового бизнеса на улице Молодогвардейская, 486 м2
Цена:
91 900 000 ₽
Цена м2:
189 094 ₽
г Москва, ул Молодогвардейская, д 21 к 1
Помещение свободного назначения формата Street Retail с арендатором в ЖК бизнес-класса "Лосиный остров". ЖК состоит из 7 корпусов, этажностью от 12 до 29 этажей. 25 минут пешком от станции метро Бульвар Рокоссовского. Плотный жилой массив. Помещение расположено на въезде в ЖК. Интенсивный автомобильный и пешеходный трафик. 1 этаж. Отдельный вход с улицы. Рядом большая парковка. Высота потолков: 4 м. Арендатор: Яндекс Лавка, ДДА. МАП: 525 000 руб., безусловная индексация 5%.

