Аренда арендного бизнеса у метро Румянцево, 54 050 м2
Описание
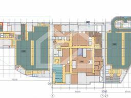
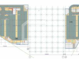
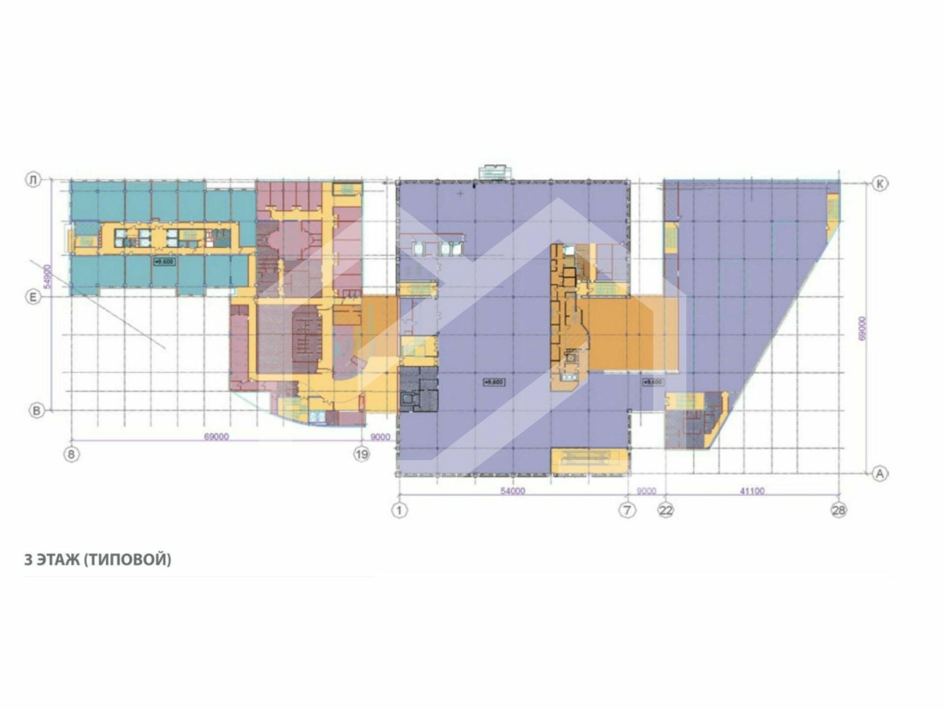
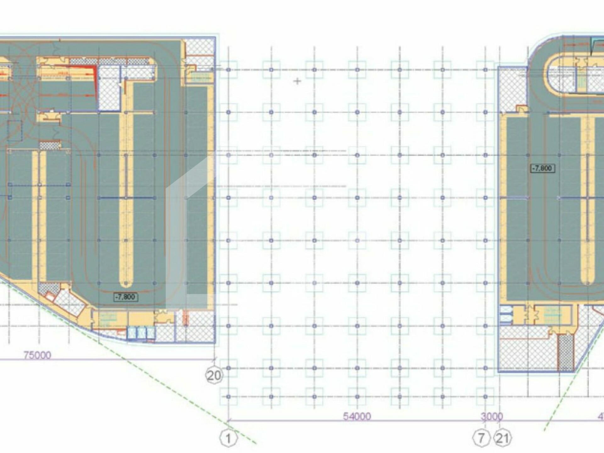
Характеристики объекта
Описание
Торгово-офисный комплекс с арендаторами в ЮЗАО. Первая линия домов. 22 минуты пешком от метро Тропарево. Комплекс состоит из офисной и торговой части: 16 этажный Бизнес-центр класса В+ общей площадью 17 893 кв.м.; 2-х этажный универмаг Европейской моды "ХЦ" площадью более 10 000 кв.м. На первом этаже Бизнес-центра расположены ресепшн, административные помещения, столовая. Со второго этажа по шестнадцатый - офисные помещения. Интенсивный автомобильный и пешеходный трафик. 6 отдельных входных групп. Витринное остекление. Места для вывесок. Зона разгрузки/погрузки. Вытяжка для общепита. Есть подземная автостоянка на -1, -2, -3 этажах общей вместимостью 656 м/мест; открытая автостоянка на 120 м/мест; двухпостовая мойка для легковых автомобилей. Рядом остановки общественного транспорта. Электрическая мощность: 5000 кВт. Высота потолков: 3 м.
Арендаторы: якорный арендатор Холдинг центр | Офис | Перекрёсток.
Общий МАП: 42 000 000 руб.
АрендаторыИнформация об арендаторах
Расположение
Похожие объекты
