Продажа готового бизнеса у метро Белорусская, 277 м2
Цена:
70 000 000 ₽
Цена м2:
252 707 ₽
г Москва, Ленинградский пр-кт, д 10
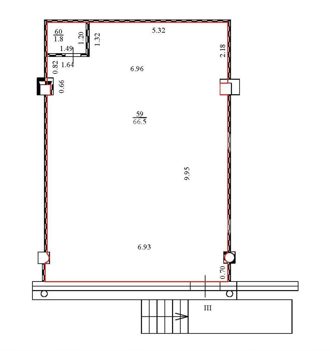
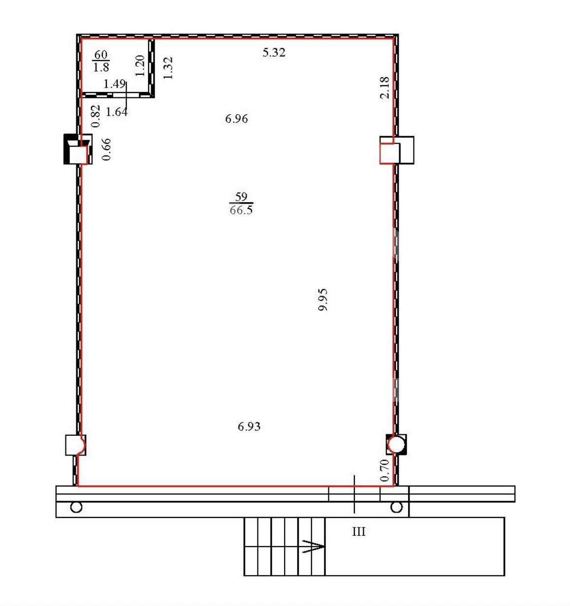
Предлагаем торговое помещение формата Street Retail с надежным арендатором Кухни Haier, площадью 38,6 кв. м., расположенное на 1 этаже жилого дома. Без комиссии для покупателя.
Преимущества объекта:
-первая линия Лермонтовского проспекта;
-пешая доступность от станций метро Лермонтовский проспект и Косино (4 минуты пешком);
-объект отлично просматривается, находится в легком доступе для клиентов;
-развитая инфраструктура района;
-надежный арендатор;
-зальная планировка;
-витринное остекление;
-место для вывески;
-парковка вдоль фасада, напротив остановка общественного транспорта и пешеходный переход.
Технические параметры объекта:
-отдельный вход с фасада;
-электрическая мощность: 15 кВт;
-высота потолков: 4 м.
Информация об арендаторе:
-арендатор: кухни Haier, КДА;
-МАП 250 000 руб./мес.;
-окупаемость: 11,8 лет;
-доходность: 8,5 %.
Свяжитесь с нами для получения дополнительной информации!

