Продажа производственного помещения на улице Береговой, 11 473,4 м2
Цена:
3 500 000 000 ₽
Цена м²:
305 053 ₽
г Москва, Береговой пр-д, д 4 к 3 стр 5
Кадастровый номер: 50:26:0160313:481
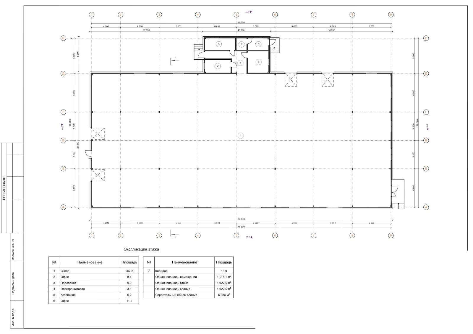
Предлагаем в продажу современный теплый склад общей площадью 1 018 кв. м. в Апрелевке.
Преимущества:
Удобная транспортная доступность – 28 км от МКАД по Киевскому шоссе.
Близость к ЦКАД и Новой Москве.
Локация: Апрелевка, удобный подъезд с Киевского шоссе.
Развитая транспортная инфраструктура.
Близость к метро Саларьево.
1 этаж ОСЗ.
Бетонные полы класса В30 с защитным покрытием "Протексил".
Отапливаемое помещение.
Центральные коммуникации: отопление, канализация.
Возможность маневра фур и парковка на 30 мест, подходит для грузового транспорта.
Ворота 2 шт. на уровне 0.
Режим работы 24/7.
Для получения дополнительной информации и организации просмотра, пожалуйста, свяжитесь с нами.
Технические характеристики:
Общая площадь: 1 018 кв. м
Складская площадь: 967,2 кв. м.
Офисная часть: 20,6 кв. м.
Подсобные помещения: 12,3 кв. м
Высота потолков: 4.1 – 6.5 м.
Нагрузка на пол: 1,5 т/кв. м.
Высота ворот: 3 м.
Электрическая мощность: 200 кВт (оплата отдельно по счетчику).
