Продажа склада в г. Ногинск, 1 073 м2
Цена:
50 000 000 ₽
Цена м2:
46 598 ₽
Московская обл, г Ногинск, деревня Аксено-Бутырки, ул Молодежная, д 12
Помещение общей площадью 1204 кв. м., в складском комплексе Light industrial вблизи деревень Кувекино и Евсеево.
Преимущества:
Объект расположен между Варшавским и Калужским шоссе.
20 минут от м. Троицк и Ольховая.
Развитая инфраструктура.
Сложившееся торгово-промышленное окружение.
1, 2 этаж ОСЗ.
Формат блоков: 80% - универсальное пространство и хранение, 20% - офисно-торговый блок.
Закрытая территория.
Дополнительная аренда легковых и грузовых парковочных мест - по запросу.
Технические характеристики в корпусе L:
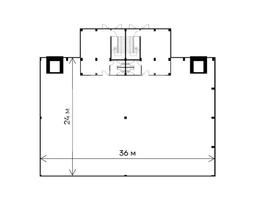
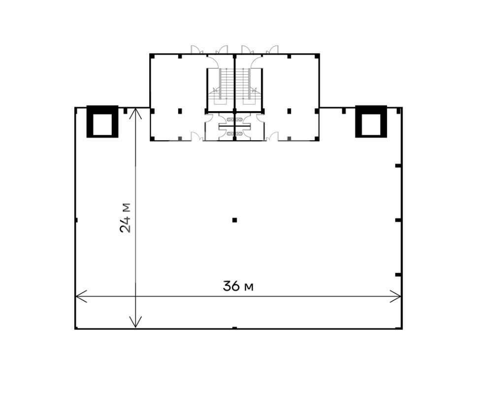
Площадь блока: 1204 м2.
Промышленно-складская площадь: 876 м2.
Офисно-торговая площадь: 328 м2.
Шаг колонн: 12х18 м.
Высота потолка: 8 м.
Нагрузка на пол: 5 т/м².
Парковка - 4 места для л/а, 2 грузовых места.
Электричество - 23 кВт, 20 вт/м2, можно увеличить.
Погрузочные зоны в каждом блоке на уровне 1.2 м или 0 м от земли.
Погрузочные зоны докового типа оборудованы докшелтерами и доклевеллерами.
Офисно-торговый блок: двухуровневый, с готовой отделкой.
Система пожаротушения.
Так как корректный адрес отсутствует на Яндекс.Картах, введен ближайший.

