Продажа склада в г. Пушкино, 833,3 м2
Цена:
83 300 000 ₽
Цена м2:
99 963 ₽
Московская обл, г Пушкино, деревня Цернское, тер АгроПром, д 34
Склад на своем огороженном земельном участке площадью 0,17 Га в индустриальном парке "ЦЕРНСКОЕ". Объект расположен на ЦКАД, рядом - в 7км пересечение с Ярославским шоссе и А-108 (бетонка). Так как корректный адрес отсутствует на Яндекс.Картах, введен ориентировочный. Парк площадью 40 га находится в 38 километрах к северо-западу от Москвы. ВРИ - склады, производство.
Проектом индустриального парка предусмотрено:
Единый АГО (архитектурно-градостроительный облик проекта), согласно ТЗ.
Общее ограждение периметра парка.
Твердые внутрипарковые проезды.
Парковочные зоны для грузового и легкового транспорта.
Электрификация. Газификация. Водоснабжение. Ливневая канализация. Интернет.
Услуги управляющей компании: освещение, охрана, КПП, СКУД, видеонаблюдение, интернет/телефония, вывоз ТКО, уборка территории, пр.
ВРИ для здания по проекту: Склад - 6.9, Производственная деятельность - 6.0, Легкая промышленность - 6.3.
Технические характеристики:
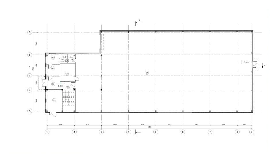
Площадь блока: 833.3 м2.
Промышленно-складская площадь: 752 м2.
АБК: 81 м2.
Шаг колонн: 6х18 м.
Высота потолков: 8 метров + антресоль 3,5 м.
Нагрузка на пол: 5 тонн/м².
Выделенная мощность: 50 кВт, возможно увеличение.
Парковка: 2 места для л/а, 1 груз. места.
Собственная котельная, магистральный газ, центральные коммуникации от промпарка.

