Продажа готового бизнеса в ЖК Клубный город на реке Primavera, 56,1 м2
Цена:
60 000 000 ₽
Цена м2:
1 069 518 ₽
г Москва, Покровская наб, д 16
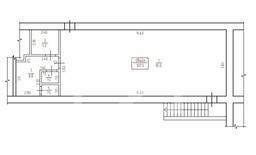
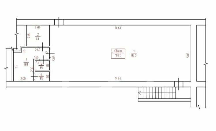
Помещение свободного назначения формата Street Retail с арендатором WildBeries (не франшиза). Плотный жилой массив. Сложившееся торговое окружение. Ближайшая станция МЦД-3 Красково. Цокольный этаж жилого дома Зальная планировка. Отдельный вход с фасада. Место для вывески. Электрическая мощность: 20 кВт. Высота потолков: 3 метра.
Арендатор WildBerries (не франшиза).
Договор бессрочный
МАП 255 000 руб.
Индексация 10% по соглашению сторон

