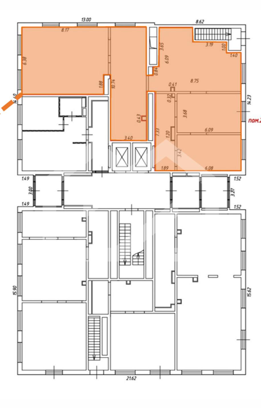
Продажа готового бизнеса на улице Молодогвардейская, 486 м2
Цена:
91 900 000 ₽
Цена м2:
189 094 ₽
г Москва, ул Молодогвардейская, д 21 к 1
Помещение свободного назначения формата Street Retail с арендатором в ЖК "Бунинские Луга". Комплекс состоит из 48 корпусов переменной этажности (от 8 до 18 этажей). 4 минуты пешком от станции метро Потапово. Плотный жилой массив. Сложившееся торговое окружение. Интенсивный пешеходный трафик. 1 этаж жилого дома. Отдельный вход с фасада. Зальная планировка. Витринное остекление. Место для вывески. Электрическая мощность: 37 кВт. Высота потолков: 4.2 м. Арендатор: Самокат, ДДА. МАП: 543 000 руб.

