Аренда офиса в БЦ Башня Федерация, 343 м2
Аренда в месяц:
3 185 000 ₽
Цена м2/год:
111 420 ₽
г Москва, Пресненская наб, д 12
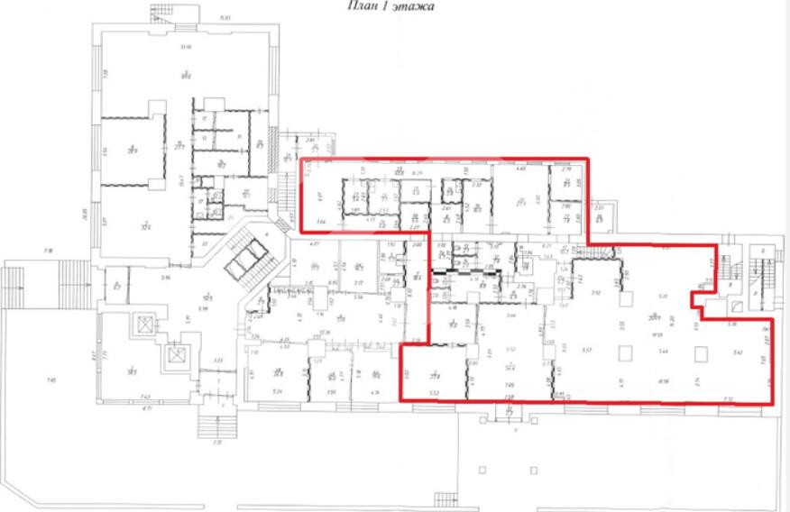
Бизнес-центр "NAPMEN CLUB" расположен на границе между Басманным и Таганским районами. В 7 минутах ходьбы от здания находится станция метро "Китай-город". Также имеется удобный подъезд с Бульварного кольца, а доехать до ТТК можно за 3 минуты. Офисное помещение находится на 1 этаже и в подвале здания, его площадь- 539 кв. м. Также на первом этаже располагается ресторан и отделение банка. Состояние помещения: помещение передается в состоянии as is/как есть. Предусмотрен наземный паркинг.

