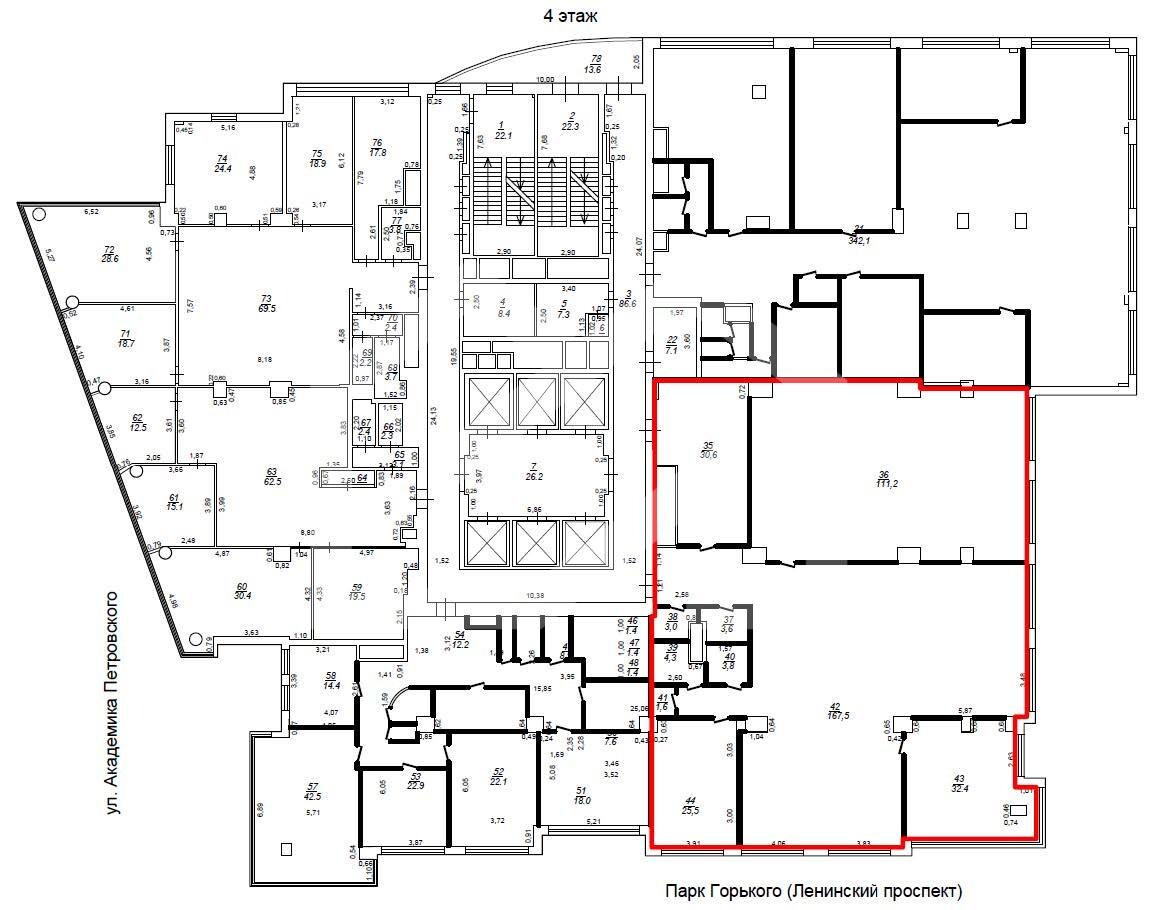
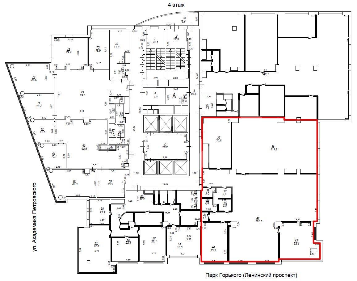
Аренда офиса на улице 1-й Волоколамский, 1 636 м2
Аренда в месяц:
4 324 494 ₽
Цена м²/год:
31 716 ₽
г Москва, 1-й Волоколамский проезд, д 10 стр 1
Офисное помещение 437,2 кв.м в бизнес-центре «Central Park Tower». 6 минут пешком от станции метро Шаболовская. Выезд на Садовое кольцо в 1,5 км, расстояние до ТТК - 2,5 км. Рядом с БЦ несколько кафе, супермаркет, аптека, отделение банка, магазины. На 1 этаже служба ресепшн, кафе и столовая, отделение банка, магазин, салон красоты, платежный терминал и банкомат. 4 этаж 22-этажного здания. Смешанная планировка. Офис с отделкой. Центральное четырехтрубное кондиционирование. Приточно-вытяжная вентиляция, сигнализации (противопожарная и охранная), контроль доступа. 7 скоростных лифтов Otis. Четырехуровневый подземный паркинг.
