Продажа склада в г. Балашиха, 9 108 м2
Цена:
1 256 904 000 ₽
Цена м2:
138 000 ₽
Московская обл, г Балашиха, ул Новгородская, д 43
Производственно-складское помещение формата Light Industrial в цифровом индустриальном парке "ЛЕНИНСКИЙ". 1 км от трассы М-4, вблизи с г,Видное. 10 км от МКАД, в 30 км от ЦКАД. 5 мин. на автобусе (2 км) до пл. "Расторгуево". Общая площадь парка 85 000 м2. 1 этаж. Открытая планировка. Объект прошел сертификацию ассоциации по уровню готовности зданий к облачным подключениям и соответствию стандартам цифровой экономики. Парки Industrial City подключены к мощным центрам обработки данных, имеют высокий уровень надежности и безопасности. Готовая инженерная инфраструктура. Оборудованные парковочные места. Доступ к производственно-складским помещениям 24/7. Комплексная эксплуатация объектов. Охраняемая территория. Въезд на территорию бесплатный (цена входит в охрану). Земельный участок под помещением выделяется и передается в собственность.
Технические характеристики:
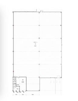
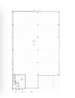
Площадь блока - 3140,33 кв.м.
Площадь производственная: 2818 кв. м.
Площадь офиса: 328 кв.м.
Шаг колонн: 18х24 м.
Высота потолка: 10 м - рабочая, до низа металлоконструкций, 12 м - до потолка.
Ворота - доковые 2 шт.
Нагрузка на пол: 6 т/м².
Мощность - 150 кВт, возможно увеличение.
Количество грузовых парковочных мест - 2, легковых - 3.
Сдача - 4 кв. 2026 г.
Возможно приобретение в ипотеку.

