Аренда склада в г. Балашиха, 1 645 м2
Аренда в месяц:
1 974 000 ₽
Цена м2/год:
14 400 ₽
Московская обл, г Балашиха, ул Советская, д 28А
Помещение под пищевое производство в технопарке "Парк Рябиновая". Первая линия Рябиновой улицы. 10 минут пешком от ст. метро "Мещерская". Развитая транспортная инфраструктура, выезд на СЗХ, Боровское шоссе, 5 минут на транспорте от МКАД. Сложившееся торгово-промышленное окружение. Цокольный этаж 5-ти этажного складского здания. Зальная планировка. Подходит для организации фабрики-кухни и сортировки, хранения пищевой продукции и экспресс-доставки. Центральное отопление, водоснабжение, промышленная канализация. Система пожаротушения/оповещение. Пандус для малотоннажного транспорта, автоматические секционные ворота. Возможна аренда большего или меньшего метража. Отдельно арендуются офисные блоки от 100 кв.м. Огороженная территория. Собственный паркинг. Напротив остановка общественного транспорта.
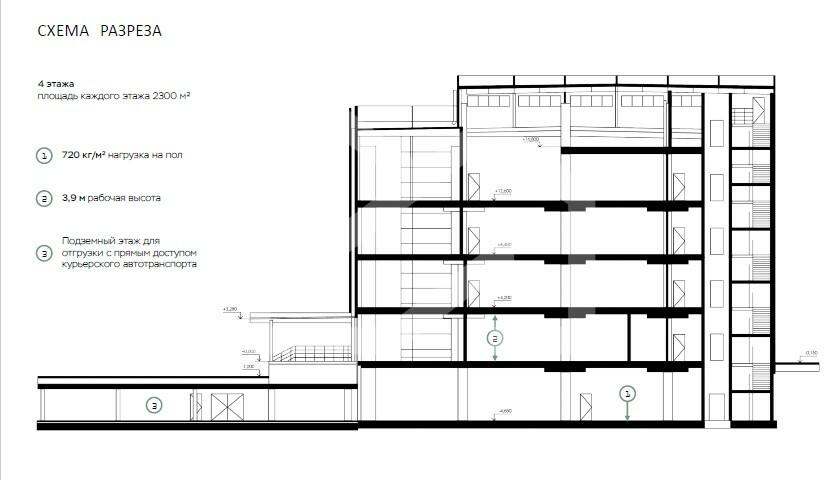
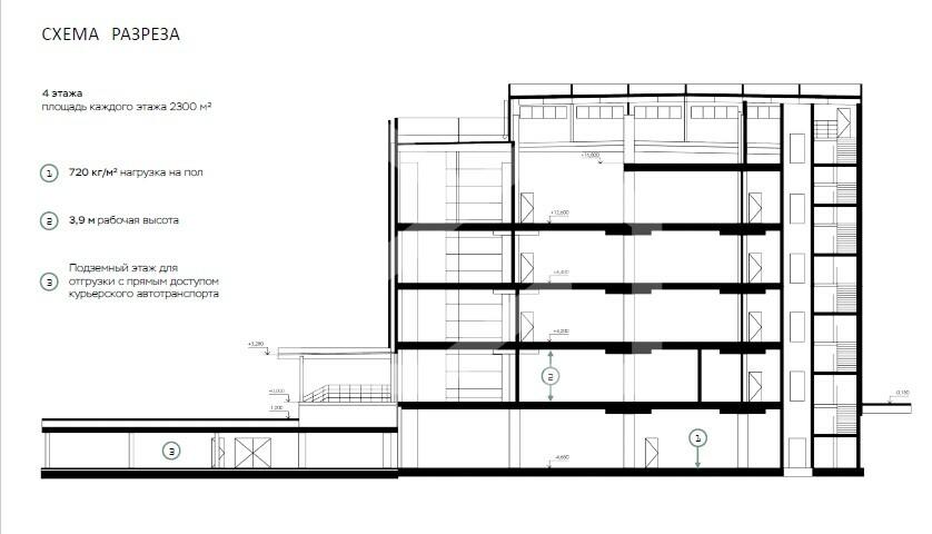
Технические характеристики:
Площадь блока: 1800 м2.
Нагрузка на пол: 720 кг. на м2.
Высота потолков: 3,9 м.
Сетка колонн: 8*8.
Мощность электричества: до 500 кВт на 1000 кв.м. арендуемой площади.
Основное ВРИ: пищевое производство (6.4).
Ввод объекта в эксплуатацию: середина 2025 года.
Цена включает НДС и ОРЕХ.
Прямой представитель собственника, без комиссии для арендатора.

