Аренда склада в г. Химки, 8 250 м2
Аренда в месяц:
9 625 000 ₽
Цена м2/год:
13 992 ₽
Московская обл, г Химки, деревня Перепечино, стр 1Б/1
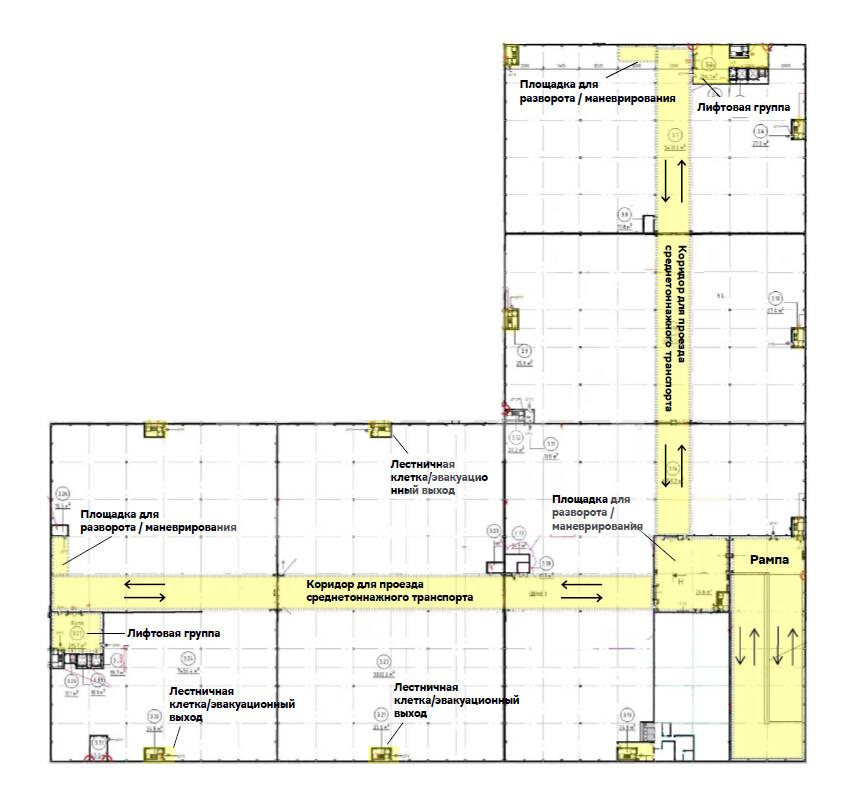
PNK Park M4 – 3-х этажное индустриальное здание. По периметру здания на уровне 2-го этажа возведен технологичной балкон, по которому свободно передвигаются фуры, здесь же располагаются доковые ворота с полноценными по размеру зонами погрузки/разгрузки и парковка для легковыхавтомобилей резидентов комплекса. По всему периметру предусмотрено остекление для возможности устройства двухэтажных офисов. Доставка грузов на 3-ий этаж – разгрузка
среднетоннажных машин непосредственно на 3-м этаже, разгрузка для фур через лифтовые группы на 1
и 2 этажах.
PNK парк МКАД-М4 ОСНАЩЕН СИСТЕМАМИЭЛЕКТРОСНАБЖЕНИЯ
Два источника питания: 1. Трансформаторная подстанция 2. Дизель-генераторная станция
Полный комплекс мероприятий по электробезопасности: молниезащита, заземление, уравнивание потенциалов. ВОДОСНАБЖЕНИЯ И ВОДООТВЕДЕНИЯ
Применение напорных толстостенных полиэтиленовых труб ПЗ 100
SDR11. Вакуумная система отвода ливневых стоков.
ПОЖАРОТУШЕНИЯ
Собственная противопожарная насосная станция с резервуарами на территории индустриального парка. Кольцевая сеть наружного
противопожарного водопровода. Размещение пожарных гидрантов каждые 150 м, что полностью соответствует российским нормам.
ОТОПЛЕНИЯ
Автономная блочно-модульная котельная. Воздушно-тепловые завесы у наружных ворот и основных входов в
здание.
ОЧИСТНЫМИ СООРУЖЕНИЯМИ
Локальные очистные сооружения в индустриальном парке.
ТРАНСПОРТНАЯ ДОСТУПНОСТЬ
• удобная транспортная развязка МКАД и М4 «Дон» - 500 м
• автобусная остановка «Прудищи» – 1 км (10-12 минут пешком)
• станция метро «Домодедовская» - 6 км (12 минут на
общественном транспорте)
• аэропорт «Домодедово» – 20 км
• центр деловой активности г. Москва – 30 км
В

