Продажа склада в г. Ногинск, 1 073 м2
Цена:
50 000 000 ₽
Цена м2:
46 598 ₽
Московская обл, г Ногинск, деревня Аксено-Бутырки, ул Молодежная, д 12
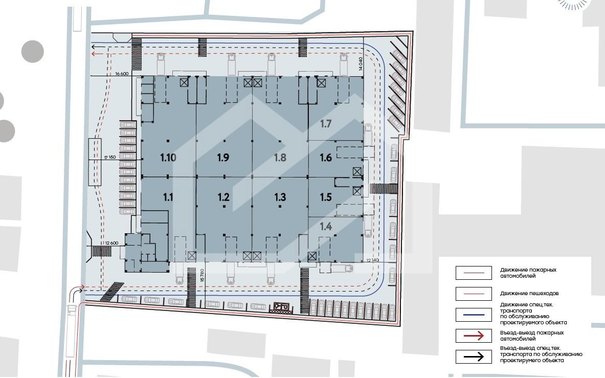
Производственно-складское помещение в технопарке Noman. Центр крупной промышленной зоны. Развитая транспортная логистика, 15 минут от МКАД и 20 минут от ТТК. Сложившееся торговое окружение: ТЦ "Москва", комплекс "Садовод". Напротив крупный жилой массив с развитой инфраструктурой. Двухэтажный блок с антресолью. Открытая планировка. Зона погрузки/разгрузки. Отдельная входная группа для сотрудников. В блоке можно установить грузовой лифт или грузовую платформу для подъема груза на 2 этаж.
Технические характеристики:
Общая площадь: 1 248,79 кв.м., из которых:
1 этаж - 528,6 кв.м.
Высота потолка - 8,4 метра.
Нагрузка на пол - 2 т/м.
Шаг колонн - 6*9 м.
2 этаж: 527,7 кв.м.
Высота потолка - 4,5 м.
Нагрузка на пол - 1 т/м.
Антресоль: 126 кв.м.
Высота потолка - 3,7 м.
Нагрузка на пол - 1 т/м.
Запас по электричеству: 110 кВт (с возможностью увеличения).
Ввод в эксплуатацию 2 кв. 2026 г.
Продажа исключительно под производственные нужды, склад не более 30% от общей площади.
Есть рассрочка. Все условия обсуждаются индивидуально.

