Продажа склада в г. Ногинск, 1 073 м2
Цена:
50 000 000 ₽
Цена м2:
46 598 ₽
Московская обл, г Ногинск, деревня Аксено-Бутырки, ул Молодежная, д 12
Современный складской комплекс на территории индустриального парка «Завод», Люберцы. Центр крупной промышленной зоны. 6 минут пешком до станции МЦД-3 «Панки», 10 минут до станции «Люберцы». Развитая транспортная логистика: 8 км от МКАД (20 минут на авто) и 2 км от трассы М5 «Урал». Инфраструктура: магазины, аптеки, кафе — всё в шаговой доступности. Для сотрудников: рядом жилой массив и транспортные узлы. Собственная управляющая компания. Огороженная территория. Парковка.
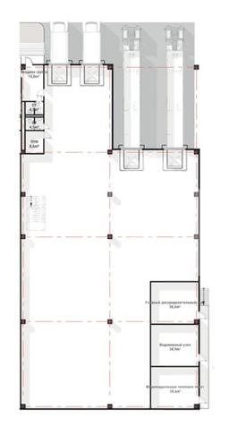
Технические характеристики:
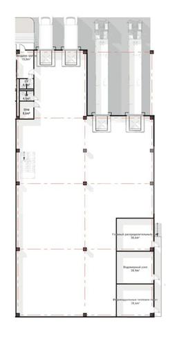
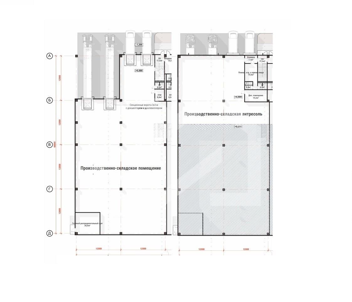
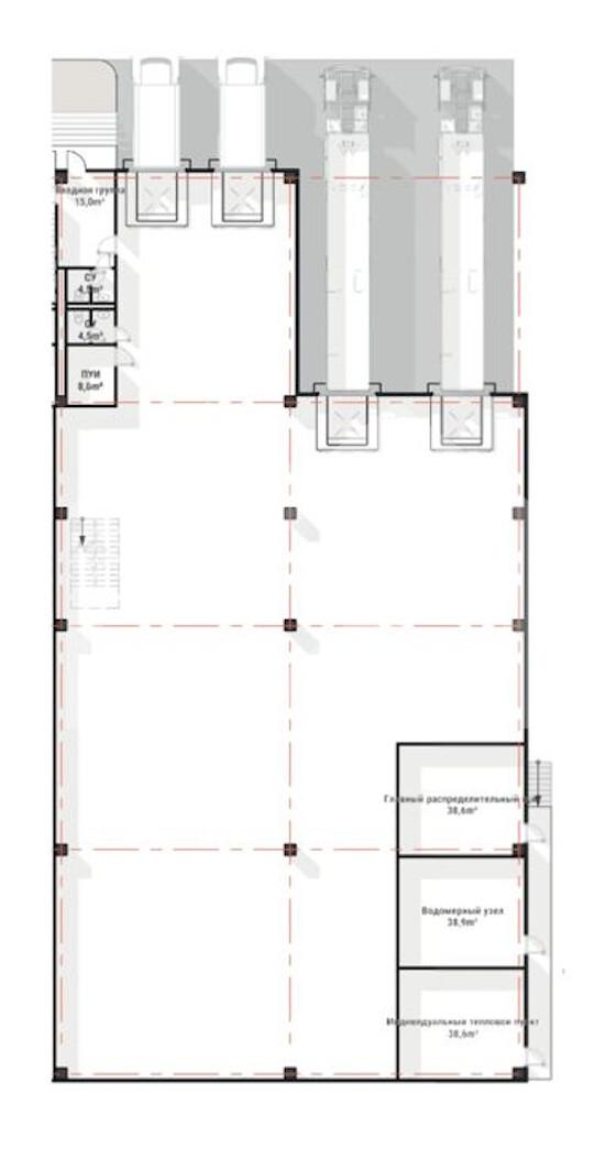
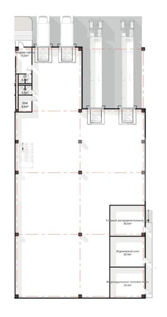
Площадь блока: 1347.7 м2.
Площадь первого этажа 895.5 м2, площадь антресоли 449.2 м2.
Есть возможность адаптации под нужны заказчика.
4 доковых узла: 2 — для фур, 2 — для малотоннажных и легковых авто.
Высота потолков: 10 метров + антресоль 4,5 м.
Нагрузка на пол: 6 тонн/м², в зоне мезонина: 1,5 т/м².
Выделенная мощность: 25 кВт в каждом блоке.
Собственная котельная, магистральный газ, центральные коммуникации.

