Продажа склада в г. Люберцы, 1 472 м2
Цена:
192 270 000 ₽
Цена м2:
130 618 ₽
Московская обл, г Люберцы, поселок Чкалово, ул Токаревская, д 15
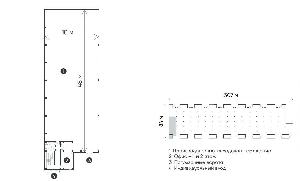
Складской комплекс формата Light Industrial в промышленном парке Сенькино, общей площадью 340 тыс м2, в пос. Краснопахорское, г. Москва. Первая линия. Развитая транспортная инфраструктура: в 50м выезд на ЦКАД, между Калужским и Киевским шоссе, 30 минут до МКАД. Доступ к основным магистралям. Планируется открытие Троицкой линии метро. Рядом крупный жилой массив. Стабильный автомобильный трафик. Зона погрузки/разгрузки: 0 и/или 1,2 м. Открытая планировка + офисные блоки. Офисные помещения с отделкой расположены на 2 уровнях, что позволяет разделить функции офиса и торгового зала. Пол: бетонный с антипылевым покрытием. Вентиляция: офисные помещения-вытяжка; складские помещения-естественная. Система видеонаблюдения. Плоская кровля с внутренним водостоком. Возможность установления кран-балки. Парковка на территории комплекса для разных типов а/м. Рядом остановки общественного транспорта.
Технические характеристики:
Корпус С.
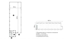
Площадь блока: 1012 кв. м. Возможно объединение любого количества блоков.
Производственно-складская площадь: 836 м2.
Офисно-торговая площадь: 136 м2.
Высота потолков: 8 метров.
Шаг колонн: 12х18.
Нагрузка на пол: 5 т/кв.м
Кросс-док с двумя типами загрузки: 0 и/или 1,2 м.
Электрическая мощность: 25 кВт.
Ввод в эксплуатацию - 3 кв. 2025 года.

