Продажа готового бизнеса в ЖК Клубный город на реке Primavera, 56,1 м2
Цена:
60 000 000 ₽
Цена м2:
1 069 518 ₽
г Москва, Покровская наб, д 16
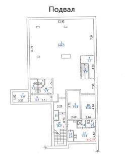
Помещение свободного назначения формата Street Retail в СВАО. Первая линия. 7 минут пешком от станции метро Марьина роща. Плотный жилой массив. Сложившееся торговое окружение. Интенсивный пешеходный и автомобильный трафик. 1 этаж (441.8 кв. м.) и подвал (276.9 кв. м.) встроенно-пристроенной части 9-этажного жилого дома. 2 отдельные входные группы. Смешанная планировка. Витринное остекление. Место для вывески. Зона погрузки/разгрузки. Парковка на улице вдоль фасада. Электрическая мощность: 120 кВт. Высота потолков: от 2.59 до 3.92 м.

