Продажа готового бизнеса на улице Переведеновский переулок, 2 258,9 м2
Цена:
360 000 000 ₽
Цена м2:
159 369 ₽
г Москва, Переведеновский пер, д 13 стр 7
Кадастровый номер: 77:06:0003015:3255
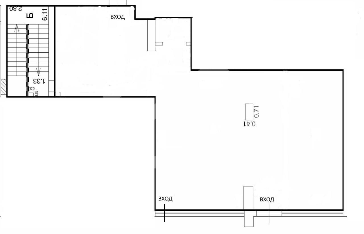
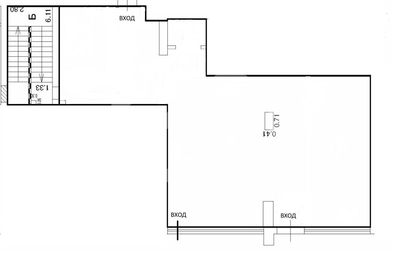
Помещение свободного назначения с арендатором в отдельно стоящем торговом здании. Первая линия улицы Обручева. 17 минут пешком от станции метро Зюзино. Густонаселенный жилой район. Рядом крупные сетевые арендаторы: Супер лента, Аптека, Рестораны и кафе. Интенсивный пеший и автомобильный трафик вдоль помещения. 1 этаж 2-этажного здания. 3 отдельные входные группы. Витринное остекление. Зона разгрузки/погрузки. Бесплатная парковка на улице. Рядом остановка общественного транспорта и пешеходный переход. Высота потолков: 4 м.
Арендаторы:
• Вcе инcтpумeнты, Споpтивнaя секция
• Площадь: 344 м2
Окупаемость: 9 лет
Стоимость продажи: 53 000 000 руб.
Мощность: 100 кВт
МАП: 491 000 р.
