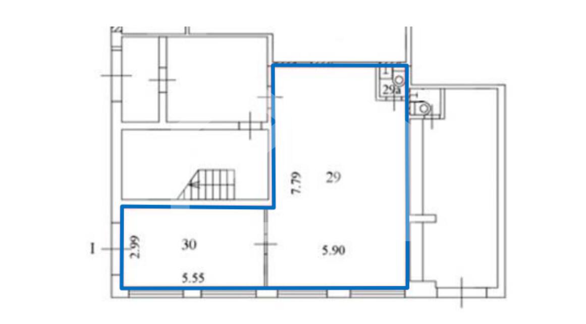
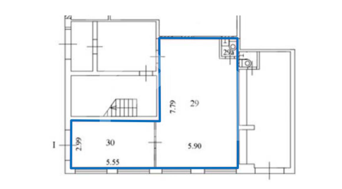
Продажа помещения свободного назначения на улице Молодогвардейская, 153 м2
Цена:
76 500 000 ₽
Цена м2:
500 000 ₽
г Москва, ул Молодогвардейская, д 4 к 1
Торговое помещение в СВАО. Плотный жилой массив. Сложившееся торговое окружение. Соседи: супермаркет «Чижик», автосалон «Автохаус». Ближайшая станция метро - Окружная (7 минут пешком). Интенсивный автомобильный и пешеходный трафик. 1 этаж. Отдельный вход с фасада. Свободная планировка. Электрическая мощность: 10 кВт. Высота потолков: 2,85 м. Наземная парковка на территории комплекса. Рядом остановка общественного транспорта. Собственная УК.

