Продажа помещения свободного назначения у метро Хлебниково, 58,9 м2
Цена:
18 848 000 ₽
Цена м²:
320 000 ₽
141435, Московская обл, г Химки, кв-л Международный, ул Береговая, д 10
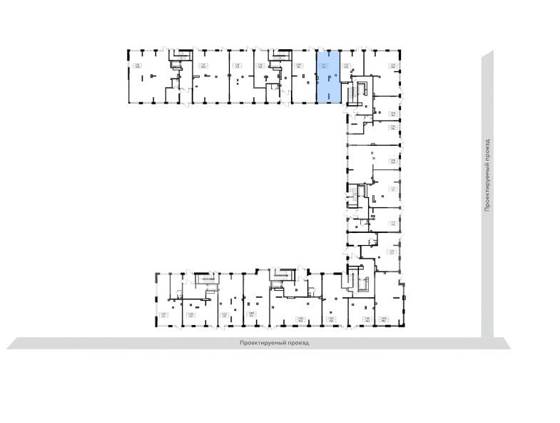
Помещение свободного назначения в ЖК "Родные кварталы". Корпус 1.2. ЖК состоит из 3-х корпусов переменной этажности (от 9 до 10 этажей), рассчитанных на 1 437 квартир. 14 минут на автомобиле от станции метро "Пыхтино". 2 км до Боровского шоссе. Плотный жилой массив. Отсутствие конкурентной среды, что гарантирует высокий спрос. Стабильный автомобильный и пешеходный трафик. 1 этаж 10-этажного жилого дома. Отдельный вход с улицы. Открытая планировка. Электрическая мощность: 16 кВт. Высота потолков: 4.6 м. Витринное остекление. Возможность размещения вывески. Наземная парковка.
Срок сдачи: III кв. 2026 г.
Выдача ключей: IV кв. 2026 г.
Так как корректный адрес отсутствует на Яндекс.Картах, введен ближайший.
