Аренда склада в г. Видное, 4 000 м2
Аренда в месяц:
5 824 000 ₽
Цена м2/год:
17 472 ₽
Московская обл, г Видное, пгт Горки Ленинские, промзона Технопарк, ул Западная, зд 3
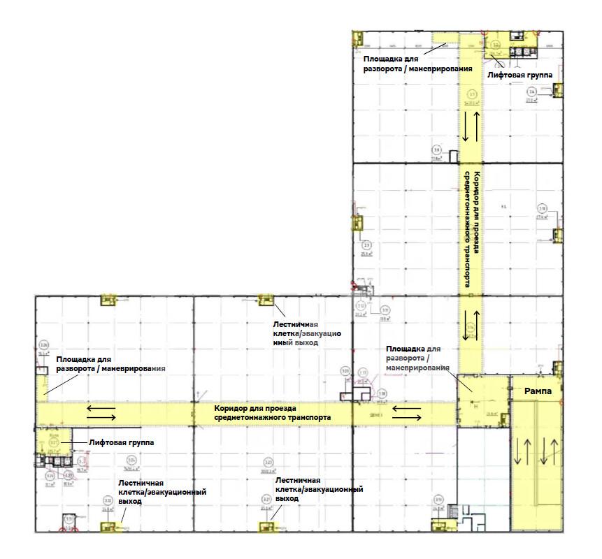
PNK Park M4 – 3-х этажное индустриальное здание. Пересечение МКАД и трассы М4. Удобная транспортная развязка. Станция метро «Домодедовская» - 6 км (12 минут на общественном транспорте). Аэропорт «Домодедово» – 20 км. Центр деловой активности г. Москва – 30 км. По периметру здания на уровне 2-го этажа возведен технологичной балкон, по которому свободно передвигаются фуры, здесь же располагаются доковые ворота с полноценными по размеру зонами погрузки/разгрузки и парковка для легковых автомобилей резидентов комплекса. Панорамное остекление для возможности устройства двухэтажных офисов. Доставка грузов на 3-ий этаж – разгрузка среднетоннажных машин непосредственно на 3-м этаже, разгрузка для фур через лифтовые группы на 1 и 2 этажах. Парк оснащен системами электроснабжения.
Технические характеристики:
Третий этаж.
Площадь блока: 3 500 кв.м.
Высота потолка: 9 м.
Нагрузка на пол 2 т/м.
Сетка колонн: 12x24.

