Аренда производственного помещения на улице Алтуфьевское, 3 008,1 м2
Аренда в месяц:
5 264 175 ₽
Цена м²/год:
21 000 ₽
г Москва, Алтуфьевское шоссе, д 27А стр 2
Предлагается складское помещение общей площадью 3 268 кв.м. в логистическом комплексе класса "А" Ближние Горки.
Преимущества:
Удобное расположение, расстояние до МКАД - 43 км.
Современное инженерное оборудование и системы противопожарной безопасности.
Удобный подъезд к зоне погрузки/разгрузки.
Современные системы безопасности.
Система видеоконтроля.
На складе круглосуточно поддерживается температурный режим в различных температурных интервалах 0+6 град., морозильная камера 100 кв.м. на -18 град.
Организация рабочих мест для сотрудников компании-заказчика.
Парковка для сотрудников.
В шаговой доступности остановки общественного транспорта.
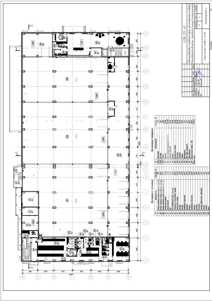
Технические характеристики:
Склад разделён на три независимые по температурному режиму (камеры - 875,
810 и 706 кв.м), отделёнными от отгрузочного пандуса перегородкой, скоростными воротами.
Доковые ворота на отметке 1,2 м.
Шаг колонн: 6 х 12 метров.
Нагрузка на пол: 3 т/кв.м.
Высота потолков: 8 метров.
