Продажа производственного помещения в г. Наро-Фоминск, 4 000 м2
Цена:
105 000 000 ₽
Цена м2:
26 250 ₽
Московская обл, г Наро-Фоминск, село Петровское, ул Заводская, д 1А
Помещение общей площадью 4905 кв. м. в складском комплексе категории Light Industrial в промышленном парке общей площадью 320 тыс м2 в Балашихе, на Новском шоссе.
Преимущества:
Развитая транспортная инфраструктура: в 200м выезд на Горьковское шоссе - М-7 Волга, 29-й километр.
14 минут и 14 км до МКАД.
1, 2 этаж.
Открытая планировка + офисные блоки.
Офисные помещения с отделкой расположены на 2 уровнях, что позволяет разделить функции офиса и торгового зала.
Парковка на территории комплекса для разных типов а/м.
Рядом - остановки общественного транспорта, жилой микрорайон, магазины и кафе..
Технические характеристики:
Здание B
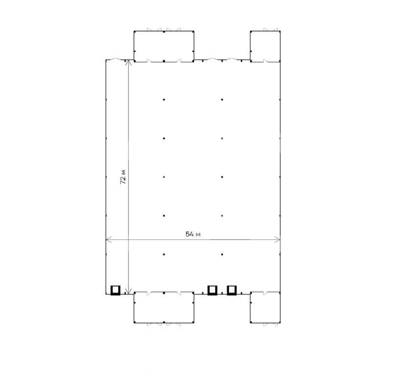
Площадь блока: 4905 кв. м., возможно объединение любого количества блоков.
Склад - 3921 м2, офис - 984 м2.
Высота потолков: 8 метров.
Шаг колонн: 12х18.
Нагрузка на пол: 5 т/м2
Зона погрузки/разгрузки: 0 и/или 1,2 м.
Ворота: доковые на высоте 1,1м или в 0 - 6шт
Электрическая мощность: 50 кВт, возможно увеличениеПол: бетонный с антипылевым покрытием.
Вентиляция: офисные помещения-вытяжка; складские помещения-естественная.
Система видеонаблюдения.
Плоская кровля с внутренним водостоком.
Возможность установления кран-балки.
Парковочных мест для легкового транспорта: 12.
Парковочных мест для грузового транспорта: 6.
Так как корректный адрес отсутствует на Янднекс.Картах, введен ближайший.

