Аренда склада в г. Химки, 8 250 м2
Аренда в месяц:
9 625 000 ₽
Цена м2/год:
13 992 ₽
Московская обл, г Химки, деревня Перепечино, стр 1Б/1
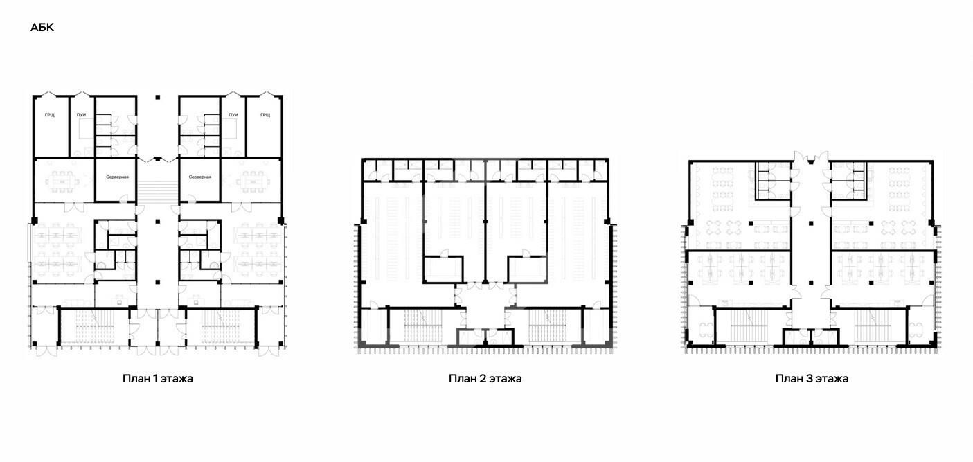
Складской комплекс класса "А" в логистическом парке "Шишкин лес" на первой линии ЦКАД. Так как корректный адрес отсутствует на Яндекс.Картах, введен ближайший. Развитая транспортная инфраструктура: 500 м до А-107 и ЦКАД, 8 км до Калужского и 14 км до Киевского шоссе, 37 км до МКАД. 1, 2, 3 этаж. Открытая планировка. Антипылевое покрытие пола. Встроенные АБК. Оборудован пожарной сигнализацией и спринклерной системой пожаротушения. Автоматические доковые ворота Hörmann на уровне 1.1 метра c герметизаторами и уравнительными платформами. Один док на каждые 426 м². Кросс-док. Эксплуатируемая кровля для реализации инфраструктурных решений арендаторов. Комфортабельное общежитие для персонала. Зеленая зона для отдыха, спортивные площадки: воркаут, баскетбол, настольный теннис. Огороженная охраняемая территория с СКД, КПП, видеонаблюдением. Клининг зон общего пользования. Техническое обслуживание внешних инженерных сетей и эксплуатация объекта. Сервис 24/7. Большая парковка для легковых и грузовых автомобилей. Профессиональная управляющая компания.
Технические характеристики корпуса №1:
Площадь блока - 92654 м2.
Складская площадь - 64254 м2, АБК - 9000 м2, мезонин 19400 м2.
Шаг колонн: 12х24 м.
Нагрузка на пол - 6 т/м²
Рабочая высота потолка: 12 метров.
Рабочая высота мезонина: 5,6 м.
Выделенная мощность - 600 кВт.
Готовность - осень 2025г.
Срок аренды - от 5 лет.

