Аренда производственного помещения в г. Химки, 1 440 м2
Аренда в месяц:
1 400 000 ₽
Цена м2/год:
11 664 ₽
Московская обл, г Химки, деревня Клушино, д 17А
Производственное здание класса "А" в Клину. Центр крупной промышленной зоны. Выезд на Волоколамское шоссе. Близость к центральным транспортным магистралям. Объект введен в эксплуатацию в 2021 г. Пять автоматических ворот докового типа производства ALUTECH разработаны в соответствии с эксплуатационными требованиями и правилами безопасности Европейской комиссии по стандартизации (CEN). Ворота оборудованы автоматическими доклевеллерами с герметизаторами проема. Одни ворота на отметке "0". Сверхплоские полы с упрочненным антипылевым покрытием (в соответствии со стандартом FM2 Special (3rd edition) Standard). Дисперсное армирование. Технология Laser Screed SXP. Удобные подъезды для погрузки и разгрузки материалов, готовой продукции или производственного сырья. Возможность использования автомобильного и железнодорожного транспорта. Централизованное водоснабжение и канализация. Просторные, комфортные бытовые и подсобные помещения. Наличие освещения, соответствующего требованиям действующих нормативов. Телекоммуникация, связь: оптоволоконные коммуникации. Безопасность: автоматическое спринклерное пожаротушение. Система контроля и управления доступом. Транспорт: собственная ж/д ветка с платформой на территории, входит в Октябрьскую ж/д. Огороженная территория. Парковка.
Технические характеристики:
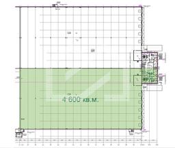
Площадь блока: 4744 кв. м.
Производственно-складские площади - 4 600 кв. м.
Офисные площади - 144 кв. м.
Общая площадь здания: 40000 кв. м.
Грузовая нагрузка на пол: 9 тонн / м2.
Высота потолков: 12 метров.
Шаг колонн: 12х24 м.
Газоснабжение: 15000 м3/час, свободно – 13700 м3/час.
Водоснабжение 2200 м3/час, свободно – 2100 м3/час. Увеличение до 8000 м3/сут.
Теплоснабжение: 5,5 Гкал/час, свободно – 2 Гкал/час.
Пар: Давление пара – 15 кг, свободно 10 т пара/ч.
Электроснабжение: 13 МВт, свободно – 10 МВт. Увеличение до 35 МВт.
Энергоснабжение: 5 трансформаторных подстанций 5000 кВА.

