Аренда склада в г. Балашиха, 1 645 м2
Аренда в месяц:
1 974 000 ₽
Цена м2/год:
14 400 ₽
Московская обл, г Балашиха, ул Советская, д 28А
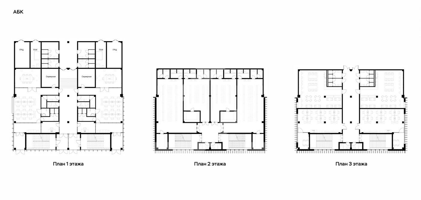
Складской комплекс класса "А" в логистическом парке "Шишкин лес" на первой линии ЦКАД. Так как корректный адрес отсутствует на Яндекс.Картах, введен ближайший. Развитая транспортная инфраструктура: 500 м до А-107 и ЦКАД, 8 км до Калужского шоссе, 14 км до Киевского, 37 км до МКАД. 1, 2, 3 этаж. Открытая планировка. Антипылевое покрытие пола. Встроенные АБК. Оборудован пожарной сигнализацией и спринклерной системой пожаротушения. Автоматические доковые ворота Hörmann на уровне 1.1 метра c герметизаторами и уравнительными платформами. Один док на каждые 426 м². Кросс-док. Эксплуатируемая кровля для реализации инфраструктурных решений арендаторов. Комфортабельное общежитие для персонала, зеленая зона для отдыха, спортивные площадки: воркаут, баскетбол, настольный теннис. Огороженная охраняемая территория с СКД, КПП, видеонаблюдением. Клининг зон общего пользования. Техническое обслуживание внешних инженерных сетей и эксплуатация объекта, сервис 24/7. Большая парковка для легковых и грузовых автомобилей. Профессиональная управляющая компания.
Технические характеристики корпуса №3:
Площадь блока - 7500 м2.
Складская площадь - 6000 м2, АБК - 100 м2, мезонин 1400 м2.
Шаг колонн: 12х24 м.
Нагрузка на пол - 6 т/м².
Рабочая высота потолка: 12 метров.
Рабочая высота мезонина 5,6 м.
Выделенная мощность - 100 кВт.
Готовность - осень 2025 г.
Срок аренды от 5 лет.

