Аренда склада в г. Химки, 8 250 м2
Аренда в месяц:
9 625 000 ₽
Цена м2/год:
13 992 ₽
Московская обл, г Химки, деревня Перепечино, стр 1Б/1
Кадастровый номер: 50:31:0030802:2
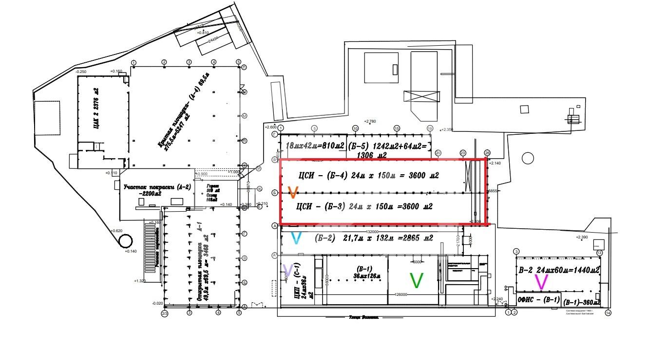
Производственно-складское помещение в Чехове, рп. Столбовая. Так как корректный адрес отсутствует на Яндекс.Картах, введен ближайший. Первая линия ул. Большая. 15 минут пешком от ст. "Столбовая". 1 этаж. Открытая планировка + АБК. Трое ворот. Пол антипыль. На территории есть газ, который можно использовать в производстве. Возможность деления/увеличения площади. В помещении установлены наборы оборудования для промышленной обработке стекла (резка, закалка, фрезеровка, триплексы, стеклопакеты, окраска, принтеры), которые можно выкупить или арендовать. Полный перечень оборудования по запросу.
Технические характеристики:
Общая площадь блока: 7 200 кв.м.
Площадь АБК: 288 кв.м.
Размер помещения 150*48 м - два пролета по 150*24м.
Высота потолка 8 м.
Нагрузка на пол: 5 т/м.
Большой запас по электричеству (на всю территорию выделено 3,4 МВт с возможностью увеличения).
Кран- балки от 5 т.
Эксклюзивное предложение компании.
Прямая долгосрочная аренда от собственника.

