Продажа готового бизнеса в ЖК Клубный город на реке Primavera, 56,1 м2
Цена:
60 000 000 ₽
Цена м2:
1 069 518 ₽
г Москва, Покровская наб, д 16
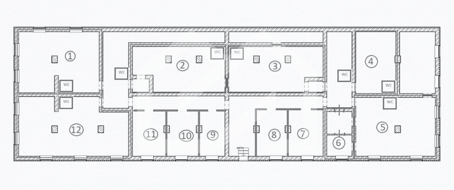
Помещение свободного назначения с арендаторами в подвале жилого дома в ЗАО. В 13 минутах ходьбы от МЦД "Рабочий поселок", станций метро "Кунцевская", "Молодежная". Плотный жилой массив, ведется активная застройка новых ЖК. Сложившееся торговое окружение. Стабильный пешеходный и автомобильный трафик. Отдельный вход с улицы. Кабинетная планировка. Свежий ремонт. Полноценные окна. Высота потолков: 2,7 м. Электрическая мощность: 60 кВт. Несколько мокрых точек; Центральные коммуникации. УК - ГБУ "Жилищник". Рядом с домом - остановка общественного транспорта. 100% площадей сдано в аренду. МАП: 600 000 руб. Окупаемость: 8,3 лет.

