Продажа готового бизнеса в ЖК Новое Медведково, 180 м2
Цена:
55 000 000 ₽
Цена м2:
305 555 ₽
Московская обл, г Мытищи, пр-кт Астрахова, д 14
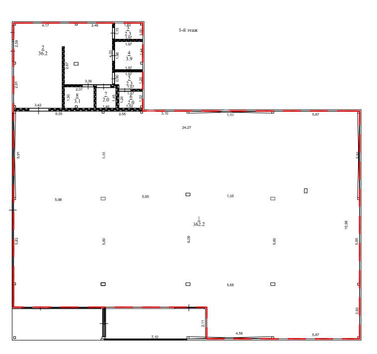
Отдельно стоящее здание с сетевым арендатором на первой линии проезда Некрасова. 9 минут на автомобиле от станции МЦД "Подольск" и "Силикатная". 100 м до проспекта Ленина, 6 км до Домодедовского и Варшавского шоссе. Плотный жилой массив. Сложившееся торговое окружение. Высокий автомобильный и пешеходный трафик. 1 этаж. Отдельный вход с улицы. Открытая планировка. Все коммуникации центральные. Электрическая мощность: 150 кВт. Высота потолков: 3,2 м. Возможность размещения вывески. Зона разгрузки/погрузки. Наземная парковка. Рядом остановка общественного транспорта. ЗУ в собственности.
Арендатор: Верный. Алкогольная лицензия получена. МАП: 545 000 руб. Окупаемость: 8,3 лет

